3-Bedroom, 2712 Sq Ft Country Plan with Covered Front Porch

This image shows the Country Style for this set of house plans.

Images/Plans copyrighted by designer. Photos may reflect homeowner modifications.

About House Plan #108-1233

Sq Ft
2712
Sq Ft
Bedrooms
3
Bedrooms
Bathroom
3
Baths
Half Baths
0
Half Baths
Bedrooms
2
Cars
Bedrooms
2
Stories
Bedrooms
68' 0'
Width
Bedrooms
52
Depth
Starting at$1750.00What's included
STEP 1Bedrooms
STEP 2Bedrooms
STEP 3Bedrooms

Subtotal:$0
Plan Collection

How much will it cost to build?

Estimate your costs based on your location and materials.

Free Cost Instant Estimator

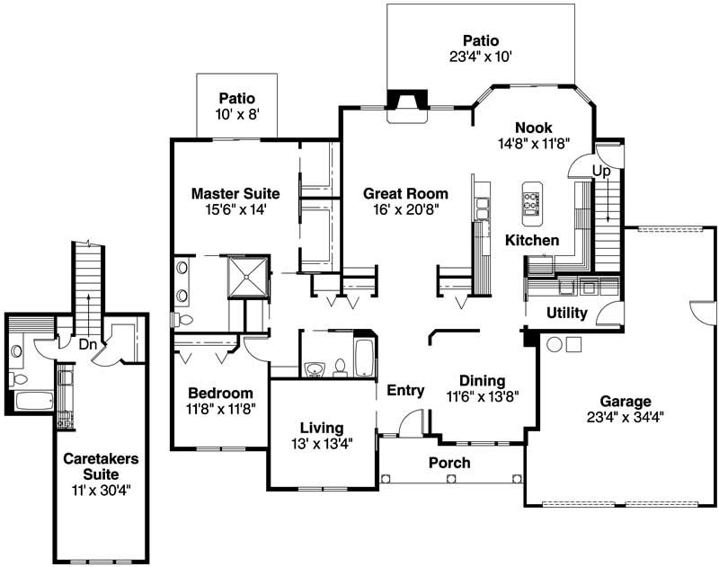
Floor Plans

Floor Plan First Story
Floor Plan First Story
Plan Collection

Can I modify this plan?

Yes! This plan can be customized—contact us for a free quote.

Additional Notes from Designer

PLEASE NOTE!! For this designer, The PDF that comes with the PRINT Packages (5 set+PDF and 8 set+PDF) is NOT Modifiable - it is for printing ONLY! PLEASE NOTE!! Optional Foundations (foundations that cost extra money) will take 5-10 business days to complete.

House Plan Description

The #108-1233 home plan is a two story, country style house plan with 2712 total living square feet. Columns, corner quoins curved keystone arches accent the front facade of this country home plan. Private, fully equipped caretakers suite has a private entrance. Storage spaces are in ample supply throughout the house.

Home Details

Summary
Plan #:108-1233
Starting at:$1750.00
Floors:2
Bedrooms:3
Full Baths:3
Half Baths:0
Garage:
Square Footage
Heated Area:2712 Sq. Ft.
First Floor:2268 Sq. Ft.
Second Floor:444 Sq. Ft.
Unheated Area:
Garage:648 Sq. Ft.
Dimensions
Depth:52' 8''
Ridge Height:23.4' 0''
Architectural Styles
Exterior Wall Material
Brick
Roofing Type
Gambrel
Roofing Material
Wood Shakes
Roof Pitch
10/12
Ceiling Height
8 Foot Ceiling
Garage Type
Attached GarageFront Entry
Fireplaces
One Fireplace
Exterior Wall Framing
2x6
Building Lot Type
Flat Site
Kitchen Features
Kitchen IslandNook/Breakfast AreaPeninsula/Eating Bar
Porches and Exterior Features
Covered Front Porch
Master Suite Features
Main Floor Master

What’s Included

Most plan sets include the following:

icon text-secondary-400 included Artist’s rendering of the home,

icon text-secondary-400 included Front/Rear/Left and Right Elevations,

icon text-secondary-400 included Main floor plan, Second or Basement floor plans (if applicable),

icon text-secondary-400 included Foundation plan and detail,

icon text-secondary-400 included Floor framing plan,

icon text-secondary-400 included Roof framing plan, supporting details and

icon text-secondary-400 included Electric layout.

What’s Not Included

These items are  NOT included:

icon text-secondary-400 includedArchitectural or Engineering Stamp - handled locally if required.

icon text-secondary-400 includedSite Plan - handled locally when required.

icon text-secondary-400 includedMechanical Drawings (location of heating and air equipment and ductwork) - your subcontractors handle this.

icon text-secondary-400 includedPlumbing Drawings (drawings showing the actual plumbing pipe sizes and locations) - your subcontractors handle this.

icon text-secondary-400 includedEnergy calculations - handled locally when required.

Related House Plans

Plan Collection
Plan Collection
Plan Collection
Plan#117-1103
Starting at$1345
2847
Sq Ft
2
Story
3
Bed
3
Bath
3
Car
Plan Collection
Plan Collection
Plan Collection
Plan#106-1324
Starting at$1695
2484
Sq Ft
2
Story
3
Bed
3.5
Bath
3
Car
Plan Collection
Plan Collection
Plan Collection
Plan#117-1124
Starting at$1095
2396
Sq Ft
2
Story
3
Bed
3
Bath
2
Car
View All

Other Plans By This Designer

Plan Collection
Plan Collection
Plan Collection
Plan#108-1923
Starting at$1150
2928
Sq Ft
1
Story
4
Bed
3
Bath
2
Car
Plan Collection
Plan Collection
Plan Collection
Plan#108-1538
Starting at$725
1216
Sq Ft
2
Story
2
Bed
2
Bath
0
Car
Plan Collection
Plan Collection
Plan Collection
Plan#108-2031
Starting at$450
1808
Sq Ft
2
Story
2
Bed
1
Bath
2
Car