Estimate your costs based on your location and materials.
Yes! This plan can be customized—contact us for a free quote.
Yes! This plan can be customized—contact us for a free quote.
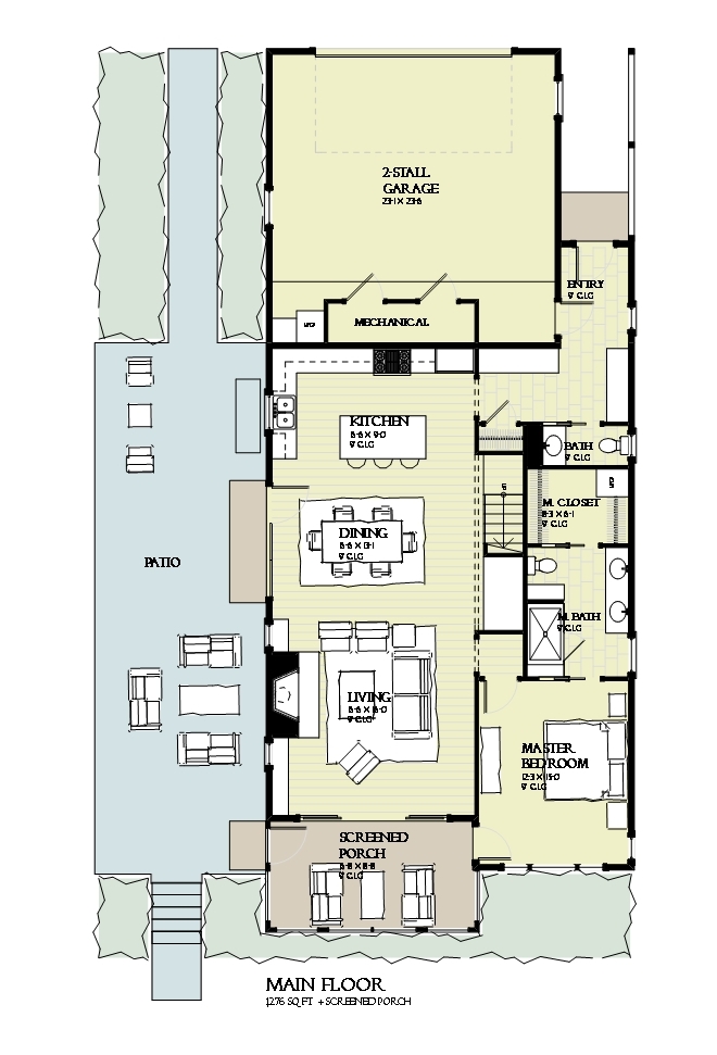
This fun getaway cottage-style home is ideal as a vacation home or for empty nesters. The design also works well on a narrow lot. The first-floor design boasts an open floor plan creating a large space for the living room, dining area, and an L-shaped kitchen with an island and eating bar. The screened-in porch and patio make indoor-outdoor entertaining a breeze. Also on the first floor is the master bedroom with a walk-in closet and a master bath with a two-sink vanity and a large shower.
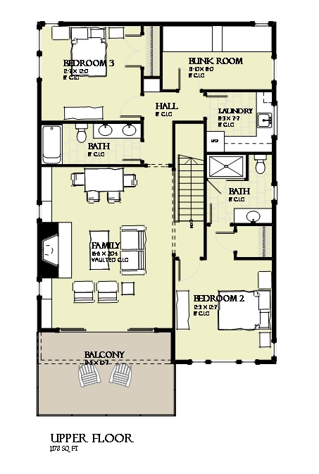
Upstairs, there is a family room with access to the balcony. At the edges of the family...
Estimate your costs based on your location and materials.
All sales of house plans, modifications, and other products found on this site are final. No refunds or exchanges can be given once your order has begun the fulfillment process. Please see our Policies for additional information.
All plans offered on ThePlanCollection.com are designed to conform to the local building codes when and where the original plan was drawn.
The homes as shown in photographs and renderings may differ from the actual blueprints. For more detailed information, please review the floor plan images herein carefully.
Estimate your costs based on your location and materials.