Estimate your costs based on your location and materials.
Yes! This plan can be customized—contact us for a free quote.
Yes! This plan can be customized—contact us for a free quote.
PLEASE NOTE!! For this designer, The PDF that comes with the PRINT Packages (5 set+PDF and 8 set+PDF) is NOT Modifiable - it is for printing ONLY! PLEASE NOTE!! Optional Foundations (foundations that cost extra money) will take 5-10 business days to complete.
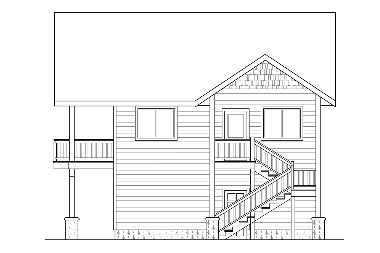
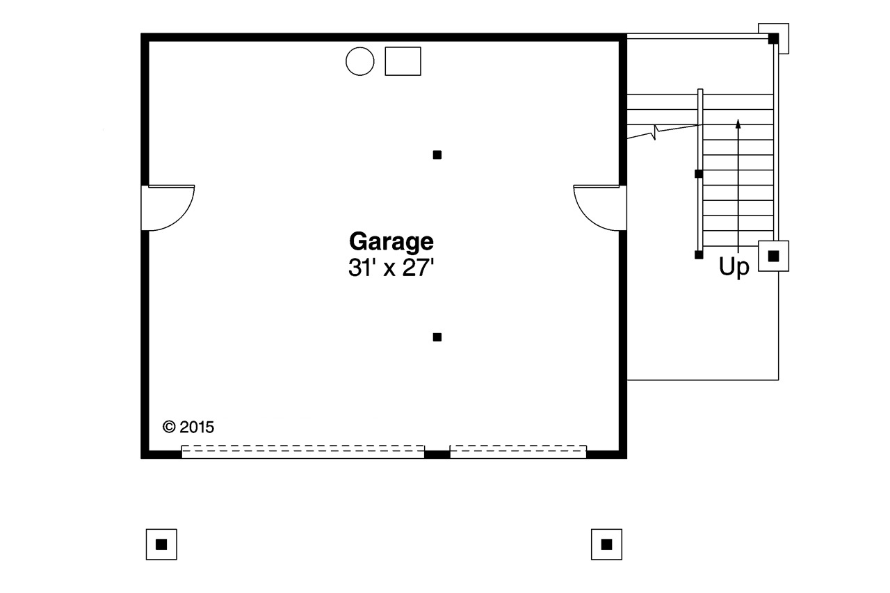
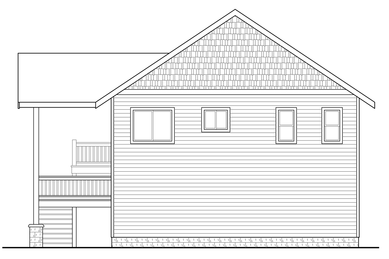
This impressive garage apartment plan can have many uses over the years. The many uses include a guest house, in-law or at-home adult child suite, or home business office. The beams and wood siding give the home wonderful curb appeal to boast about. The three-car garage is below – ideal for vehicles, toys, or even just storage. The upper lever enjoys top to large windows and vaulted ceilings that enrich the living and dining areas with natural light giving it a cozy and spacious feel. The vaulted balcony is great for entertaining and enjoying the outdoors...
Estimate your costs based on your location and materials.
All sales of house plans, modifications, and other products found on this site are final. No refunds or exchanges can be given once your order has begun the fulfillment process. Please see our Policies for additional information.
All plans offered on ThePlanCollection.com are designed to conform to the local building codes when and where the original plan was drawn.
The homes as shown in photographs and renderings may differ from the actual blueprints. For more detailed information, please review the floor plan images herein carefully.
Estimate your costs based on your location and materials.