Barn Style Garage Plan with 6 Car Spaces

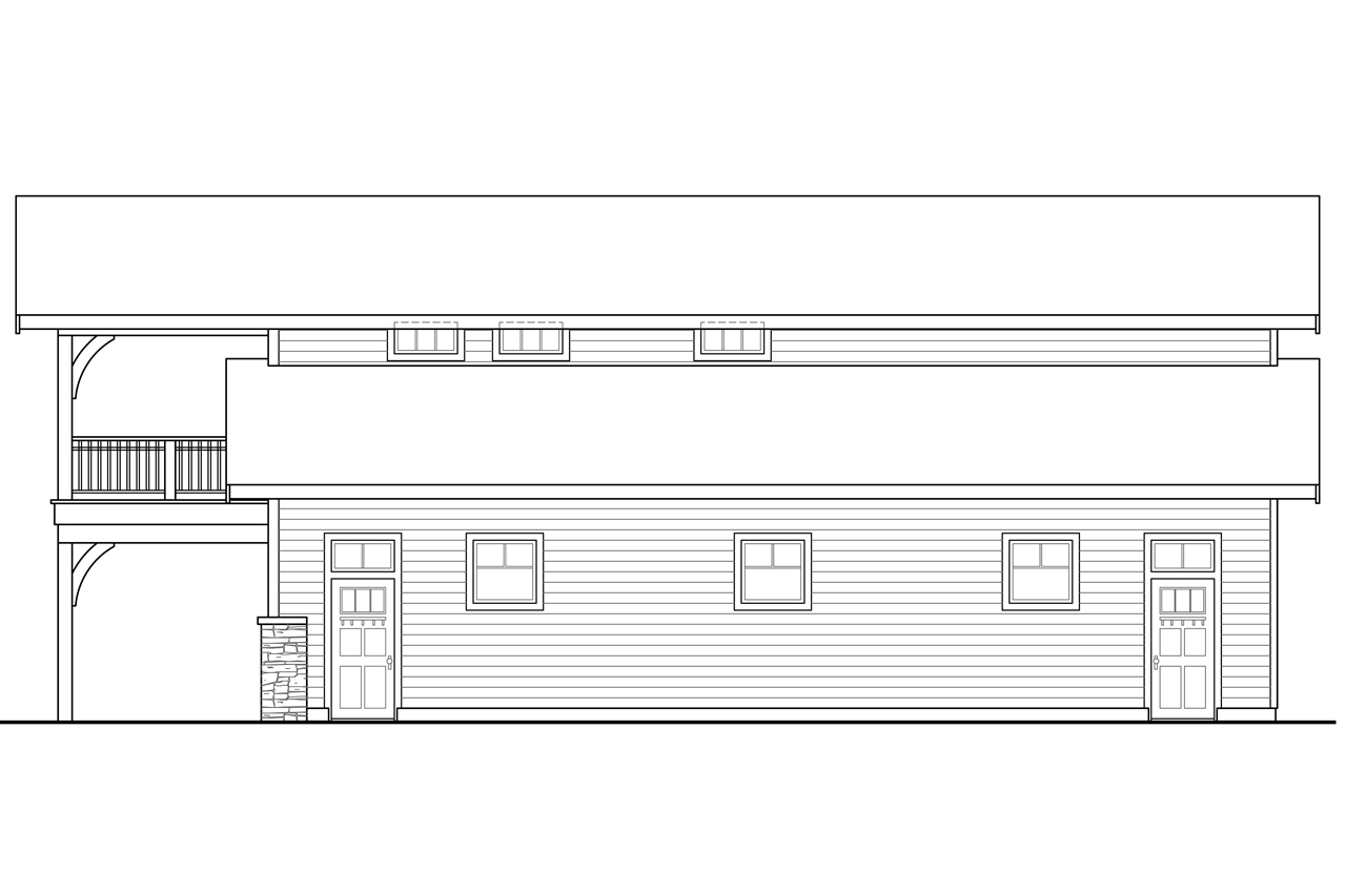
Front elevation of barn style 4-bay garage (ThePlanCollection: House Plan #108-1781)

Images/Plans copyrighted by designer. Photos may reflect homeowner modifications.

About House Plan #108-1781

Sq Ft
1948
Sq Ft
Bedrooms
0
Bedrooms
Bathroom
0
Baths
Half Baths
1
Half Baths
Bedrooms
6
Cars
Bedrooms
2
Stories
Bedrooms
60' 0'
Width
Bedrooms
58
Depth
Starting at$1250.00What's included
STEP 1Bedrooms
STEP 2Bedrooms
STEP 3Bedrooms

Subtotal:$0
Plan Collection

How much will it cost to build?

Estimate your costs based on your location and materials.

Free Cost Instant Estimator

Floor Plans

Floor Plan Upper Level
Floor Plan Upper Level
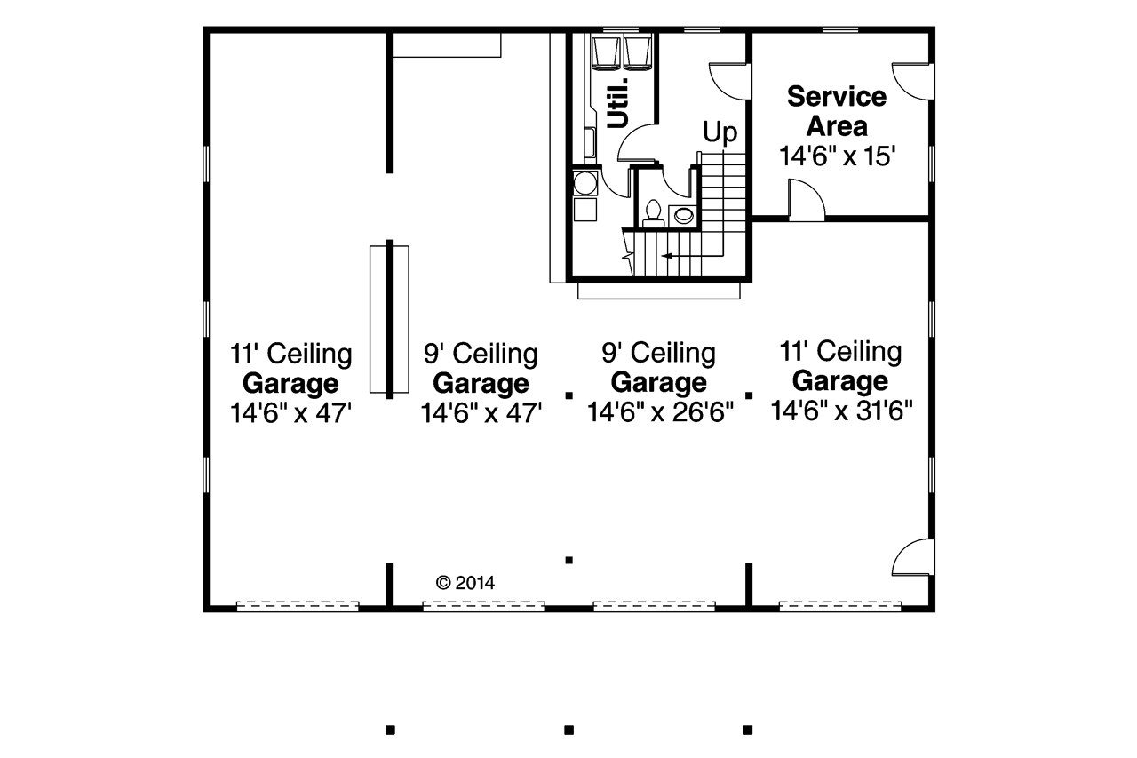
Floor Plan Garage
Floor Plan Garage
Plan Collection

Can I modify this plan?

Yes! This plan can be customized—contact us for a free quote.

Additional Notes from Designer

PLEASE NOTE!! For this designer, The PDF that comes with the PRINT Packages (5 set+PDF and 8 set+PDF) is NOT Modifiable - it is for printing ONLY! PLEASE NOTE!! Optional Foundations (foundations that cost extra money) will take 5-10 business days to complete.

House Plan Description

This "barn style" carriage house has a classic look and boasts 4 bay doors (Garage Plan #108-1781). Inside, it has capacity for 6 cars and 1948 square feet of finished space, including a half-bath, utility room and office on the first floor and a recreation room upstairs.

Home Details

Summary
Plan #:108-1781
Starting at:$1250.00
Floors:2
Bedrooms:0
Full Baths:0
Half Baths:1
Garage:
Square Footage
Heated Area:1948 Sq. Ft.
First Floor:560 Sq. Ft.
Second Floor:1388 Sq. Ft.
Unheated Area:
Garage:2320 Sq. Ft.
Dimensions
Architectural Styles
Exterior Wall Material
Vinyl SidingRock/StoneWood Siding
Roofing Type
Gable
Roof Pitch
4/12
Ceiling Height
9 Foot Ceiling
Special Feature
StorageVaulted CeilingsWorkshopBalcony
Garage Type
Detached Garage

What’s Included

Most plan sets include the following:

icon text-secondary-400 included Artist’s rendering of the home,

icon text-secondary-400 included Front/Rear/Left and Right Elevations,

icon text-secondary-400 included Main floor plan, Second or Basement floor plans (if applicable),

icon text-secondary-400 included Foundation plan and detail,

icon text-secondary-400 included Floor framing plan,

icon text-secondary-400 included Roof framing plan, supporting details and

icon text-secondary-400 included Electric layout.

What’s Not Included

These items are  NOT included:

icon text-secondary-400 includedArchitectural or Engineering Stamp - handled locally if required.

icon text-secondary-400 includedSite Plan - handled locally when required.

icon text-secondary-400 includedMechanical Drawings (location of heating and air equipment and ductwork) - your subcontractors handle this.

icon text-secondary-400 includedPlumbing Drawings (drawings showing the actual plumbing pipe sizes and locations) - your subcontractors handle this.

icon text-secondary-400 includedEnergy calculations - handled locally when required.

Related House Plans

Plan Collection
Plan Collection
Plan Collection
Plan#141-1068
Starting at$595
1668
Sq Ft
2
Story
0
Bed
0
Bath
3
Car
Plan Collection
Plan Collection
Plan Collection
Plan#196-1119
Starting at$1195
1857
Sq Ft
2
Story
0
Bed
0
Bath
0
Car
Plan Collection
Plan Collection
Plan Collection
Plan#109-1002
Starting at$1295
1624
Sq Ft
2
Story
0
Bed
0
Bath
3
Car
View All

Other Plans By This Designer

Plan Collection
Plan Collection
Plan Collection
Plan#108-1923
Starting at$1150
2928
Sq Ft
1
Story
4
Bed
3
Bath
2
Car
Plan Collection
Plan Collection
Plan Collection
Plan#108-1538
Starting at$725
1216
Sq Ft
2
Story
2
Bed
2
Bath
0
Car
Plan Collection
Plan Collection
Plan Collection
Plan#108-2031
Starting at$450
1808
Sq Ft
2
Story
2
Bed
1
Bath
2
Car