4-Bedroom, 2810 Sq Ft Coastal Plan with Walk In Closet

Front elevation of Coastal home (ThePlanCollection: House Plan #168-1117)

Images/Plans copyrighted by designer. Photos may reflect homeowner modifications.

About House Plan #168-1117

Sq Ft
2810
Sq Ft
Bedrooms
4
Bedrooms
Bathroom
3
Baths
Half Baths
0
Half Baths
Bedrooms
2
Cars
Bedrooms
2
Stories
Bedrooms
32' 0'
Width
Bedrooms
56
Depth
Starting at$2800.00What's included
STEP 1Bedrooms
STEP 2Bedrooms
STEP 3Bedrooms

Subtotal:$0
Plan Collection

How much will it cost to build?

Estimate your costs based on your location and materials.

Free Cost Instant Estimator

Floor Plans

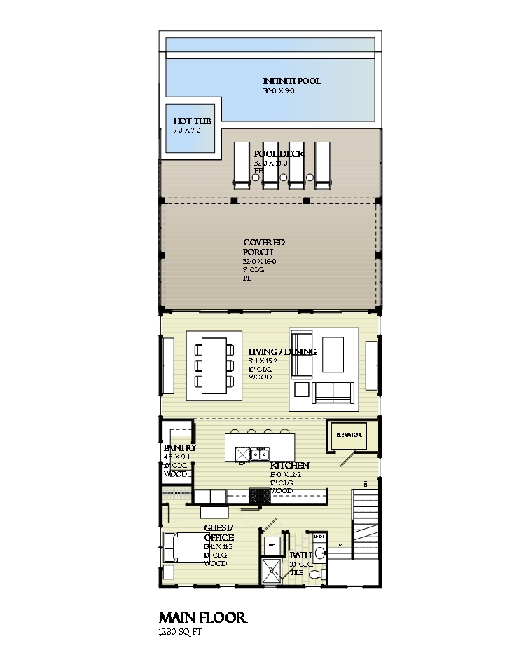
Floor Plan Main Level
Floor Plan Main Level
Floor Plan Upper Level
Floor Plan Upper Level
Floor Plan Bonus Room
Floor Plan Bonus Room
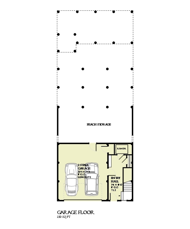
Garage
Garage
Plan Collection

Can I modify this plan?

Yes! This plan can be customized—contact us for a free quote.

House Plan Description

This lovely Coastal-style home with Traditional influences (House Plan #168-1117) has 2810 square feet of living space. The 2-story floor plan includes 4 bedrooms.

Home Details

Summary
Plan #:168-1117
Starting at:$2800.00
Floors:2
Bedrooms:4
Full Baths:3
Half Baths:0
Garage:
Square Footage
Heated Area:2810 Sq. Ft.
Basement:250 Sq. Ft.
First Floor:1280 Sq. Ft.
Second Floor:1280 Sq. Ft.
Unheated Area:
Dimensions
Architectural Styles
Exterior Wall Material
Vinyl SidingWood SidingFiber Cement Product
Roofing Type
Gable/Dormer
Roofing Material
Other Composites
Special Feature
Dining RoomGuest RoomHome OfficeBonus RoomStorageElevatorBalconyOpen Floor Plan
Garage Type
Attached Garage
Building Lot Type
Narrow Lot Design
Kitchen Features
Kitchen IslandWalk-in PantryPeninsula/Eating BarEat-In Kitchen
Porches and Exterior Features
Covered Rear PorchSundeck
Master Suite Features
Master BathroomWalk In ClosetPrivate DeckSecond Floor Master

What’s Included

Most plan sets include the following:

icon text-secondary-400 includedTitle Sheet

icon text-secondary-400 includedFloor Plans

icon text-secondary-400 includedWindow & Door Sizes

icon text-secondary-400 includedExterior Elevations

icon text-secondary-400 includedBuilding and/or Wall sections

icon text-secondary-400 includedRoof plans

icon text-secondary-400 includedFoundation Plans

What’s Not Included

These items are  NOT included:

icon text-secondary-400 includedArchitectural or Engineering Stamp - handled locally if required.

icon text-secondary-400 includedSite Plan - handled locally when required.

icon text-secondary-400 includedMechanical Drawings (location of heating and air equipment and duct work) - your subcontractors handle this.

icon text-secondary-400 includedPlumbing Drawings (drawings showing the actual plumbing pipe sizes and locations) - your subcontractors handle this.

icon text-secondary-400 includedEnergy calculations - handled locally when required.

Related House Plans

Plan Collection
Plan Collection
Plan Collection
Plan#153-1786
Starting at$1200
2363
Sq Ft
2
Story
4
Bed
3
Bath
2
Car
Plan Collection
Plan Collection
Plan Collection
Plan#120-2176
Starting at$1255
3124
Sq Ft
2
Story
4
Bed
3.5
Bath
2
Car
Plan Collection
Plan Collection
Plan Collection
Plan#178-1096
Starting at$1055
2252
Sq Ft
2
Story
4
Bed
3
Bath
3
Car
View All

Other Plans By This Designer

Plan Collection
Plan Collection
Plan Collection
Plan#168-1132
Starting at$3050
4580
Sq Ft
2
Story
5
Bed
5
Bath
3
Car
Plan Collection
Plan Collection
Plan Collection
Plan#168-1129
Starting at$2500
1930
Sq Ft
2
Story
3
Bed
2.5
Bath
2
Car
Plan Collection
Plan Collection
Plan Collection
Plan#168-1099
Starting at$2600
2609
Sq Ft
2
Story
4
Bed
3.5
Bath
3
Car