4-Bedroom, 1875 Sq Ft Cottage Plan with Vaulted Great Room

Cottage home (ThePlanCollection: Plan #169-1050)

Images/Plans copyrighted by designer. Photos may reflect homeowner modifications.

About House Plan #169-1050

Sq Ft
1875
Sq Ft
Bedrooms
4
Bedrooms
Bathroom
2
Baths
Half Baths
1
Half Baths
Bedrooms
2
Cars
Bedrooms
2
Stories
Bedrooms
41' 3'
Width
Bedrooms
57
Depth
Starting at$975.00What's included
STEP 1Bedrooms
STEP 2Bedrooms
STEP 3Bedrooms

Subtotal:$0
Plan Collection

How much will it cost to build?

Estimate your costs based on your location and materials.

Free Cost Instant Estimator

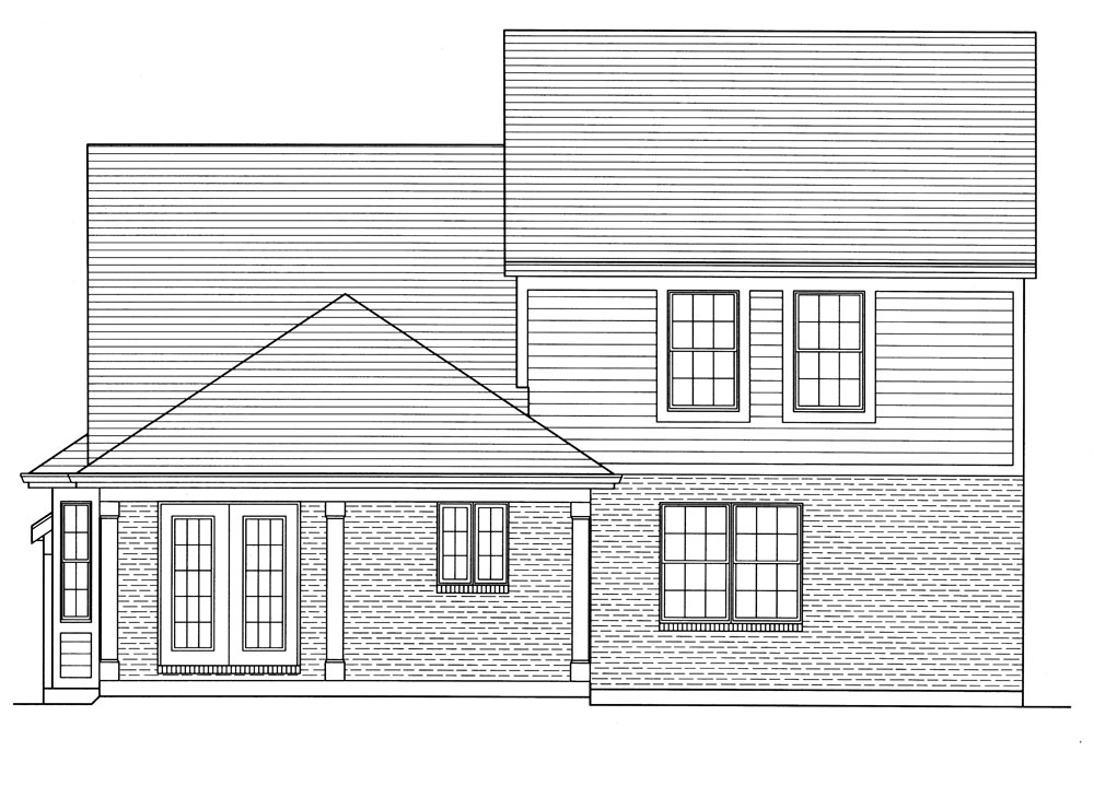
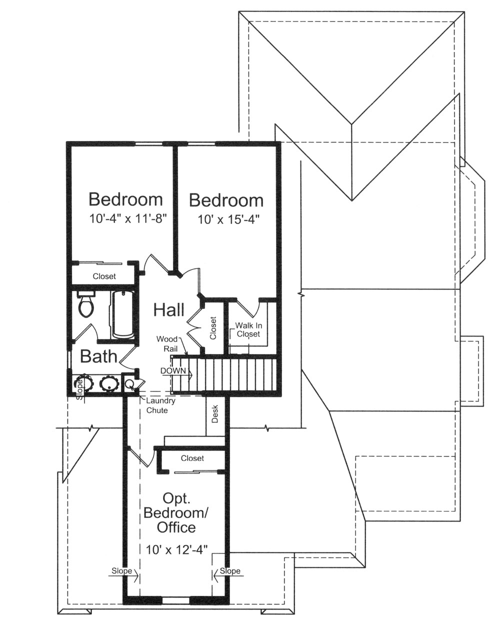
Floor Plans

Floor Plan Main Level
Floor Plan Main Level
Floor Plan Upper Level
Floor Plan Upper Level
Floor Plan Basement
Floor Plan Basement
Plan Collection

Can I modify this plan?

Yes! This plan can be customized—contact us for a free quote.

Additional Notes from Designer

PLEASE NOTE: 5 sets and 8 sets include a PDF as well.

House Plan Description

This inviting Cottage-style home with Country characteristics has 1142 square feet of living space. The 2-story floor plan includes 4 bedrooms and
• Vaulted Great Room
• Fireplace
• Main floor master bedroom suite
• Covered rear porch

Home Details

Summary
Plan #:169-1050
Starting at:$975.00
Floors:2
Bedrooms:4
Full Baths:2
Half Baths:1
Garage:
Square Footage
Heated Area:1875 Sq. Ft.
First Floor:1142 Sq. Ft.
Second Floor:733 Sq. Ft.
Unheated Area:
Basement:1142 Sq. Ft.
Dimensions
Width:41' 3''
Depth:57' 3''
Architectural Styles
Exterior Wall Material
BrickShakes
Roofing Type
GableHip
Roofing Material
Asphalt ShinglesMetal
Roof Pitch
12/128/12
Ceiling Height
8 Foot Ceiling
Special Feature
FireplaceHome OfficeFamily RoomMain Level LaundrySplit BathroomVaulted CeilingsOpen Floor PlanL-Shaped
Garage Type
Attached GarageFront Entry
Fireplaces
One Fireplace
Exterior Wall Framing
2x4
Building Lot Type
Narrow Lot Design
Kitchen Features
Kitchen IslandPeninsula/Eating BarEat-In Kitchen
Porches and Exterior Features
Covered Front PorchCovered Rear Porch
Master Suite Features
Main Floor MasterMaster BathroomWalk In ClosetSplit Master Bedroom

What’s Included

Most plan sets include the following:

icon text-secondary-400 includedGeneral notes and specifications

icon text-secondary-400 includedFront, rear and side elevations (1/4" scale)

icon text-secondary-400 includedFoundation plan (1/4" scale) indicating beam and column sizes along with lower level framing

icon text-secondary-400 includedReinforced foundation and footing details

icon text-secondary-400 includedFirst floor plan (1/4" scale) includes all necessary framing information, window rough openings, beam sizes and framing details for specialized areas

icon text-secondary-400 includedStairs, sections, cabinet layouts, window flashing and miscellaneous details necessary for understanding of construction method

icon text-secondary-400 includedRoof plan (1/8" scale) indicating pitches and wall height as well as truss profiles indicating heel heights and raised ceiling areas

What’s Not Included

These items are  NOT included:

icon text-secondary-400 includedArchitectural or Engineering Stamp - handled locally if required.

icon text-secondary-400 includedSite Plan - handled locally when required.

icon text-secondary-400 includedMechanical Drawings (location of heating and air equipment and duct work) - your subcontractors handle this.

icon text-secondary-400 includedPlumbing Drawings (drawings showing the actual plumbing pipe sizes and locations) - your subcontractors handle this.

icon text-secondary-400 includedEnergy calculations - handled locally when required.

Related House Plans

Plan Collection
Plan Collection
Plan Collection
Plan#178-1080
Starting at$1005
1980
Sq Ft
2
Story
4
Bed
2.5
Bath
2
Car
Plan Collection
Plan Collection
Plan Collection
Plan#173-1015
Starting at$1150
1840
Sq Ft
2
Story
4
Bed
2.5
Bath
2
Car
Plan Collection
Plan Collection
Plan Collection
Plan#173-1035
Starting at$1200
2198
Sq Ft
2
Story
4
Bed
2.5
Bath
2
Car
View All

Other Plans By This Designer

Plan Collection
Plan Collection
Plan Collection
Plan#169-1146
Starting at$720
1664
Sq Ft
2
Story
3
Bed
2.5
Bath
2
Car
Plan Collection
Plan Collection
Plan Collection
Plan#169-1195
Starting at$720
1706
Sq Ft
1
Story
3
Bed
2
Bath
3
Car
Plan Collection
Plan Collection
Plan Collection
Plan#169-1055
Starting at$720
1791
Sq Ft
1
Story
3
Bed
2
Bath
1
Car