4-Bedroom, 3606 Sq Ft European Plan with Walk In Closet

Front Elevation of this European House (#120-2291) at The Plan Collection.

Images/Plans copyrighted by designer. Photos may reflect homeowner modifications.

About House Plan #120-2291

Sq Ft
3606
Sq Ft
Bedrooms
4
Bedrooms
Bathroom
2
Baths
Half Baths
1
Half Baths
Bedrooms
2
Cars
Bedrooms
2
Stories
Bedrooms
50' 0'
Width
Bedrooms
47
Depth
Starting at$1475.00What's included
STEP 1Bedrooms
STEP 2Bedrooms
STEP 3Bedrooms

Subtotal:$0
Plan Collection

How much will it cost to build?

Estimate your costs based on your location and materials.

Free Cost Instant Estimator

Floor Plans

Floor Plan Main Level
Floor Plan Main Level
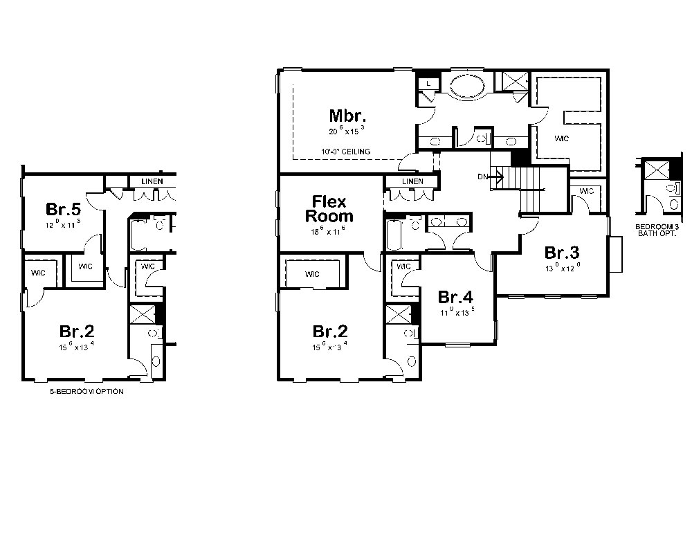
Floor Plan Upper Level
Floor Plan Upper Level
Plan Collection

Can I modify this plan?

Yes! This plan can be customized—contact us for a free quote.

Additional Notes from Designer

PLEASE NOTE! If you order an optional foundation and a materials list, the materials list will NOT include the optional foundation, only the standard foundation. The designer can provide an updated materials list for a fee, so please ask for a quote!

House Plan Description

This alluring European style house has over 3600 square feet of living space. The two story floor plan includes 4 bedrooms and 2 1/2 bathrooms. The exterior of this home has a beautiful covered front porch. Inside, this house design's floor plan includes a striking kitchen island.

Home Details

Summary
Plan #:120-2291
Starting at:$1475.00
Floors:2
Bedrooms:4
Full Baths:2
Half Baths:1
Garage:
Square Footage
Heated Area:3606 Sq. Ft.
First Floor:1596 Sq. Ft.
Second Floor:2010 Sq. Ft.
Unheated Area:
Garage:478 Sq. Ft.
Porch:102 Sq. Ft.
Dimensions
Depth:47' 4''
Architectural Styles
Exterior Wall Material
StuccoRock/Stone
Roofing Type
Hip
Roofing Material
Other Composites
Roof Pitch
5/12
Ceiling Height
8 Foot Ceiling
Special Feature
Dining RoomHome OfficeFamily RoomMain Level Laundry
Garage Type
Attached GarageFront Entry
Exterior Wall Framing
2x4
Kitchen Features
Kitchen IslandNook/Breakfast Area
Porches and Exterior Features
Covered Front Porch
Master Suite Features
Master BathroomWalk In Closet

What’s Included

Most plan sets include the following:

icon text-secondary-400 includedCover Page. Each home plan features the front elevation and informative reference sections including, general notes and design criteria*, abbreviations, and symbols for your plan.

icon text-secondary-400 includedElevations. Scaled elevations for the front, rear, and sides are provided. All elevations are detailed and an aerial view of the roof is provided.

icon text-secondary-400 includedFoundations. Foundations are fully engineered for each design, whether slab or basement.

icon text-secondary-400 includedMain Level Floor Plan

icon text-secondary-400 includedSecond Level Floor Plan

icon text-secondary-400 includedElectrical layout

icon text-secondary-400 includedWall & Stair Sections

What’s Not Included

These items are  NOT included:

icon text-secondary-400 includedArchitectural or Engineering Stamp - handled locally if required.

icon text-secondary-400 includedSite Plan - handled locally when required.

icon text-secondary-400 includedMechanical Drawings (location of heating and air equipment and ductwork) - your subcontractors handle this.

icon text-secondary-400 includedPlumbing Drawings (drawings showing the actual plumbing pipe sizes and locations) - your subcontractors handle this.

icon text-secondary-400 includedEnergy calculations - handled locally when required.

Related House Plans

Plan Collection
Plan Collection
Plan Collection
Plan#163-1001
Starting at$1230
2757
Sq Ft
2
Story
4
Bed
2.5
Bath
2
Car
Plan Collection
Plan Collection
Plan Collection
Plan#187-1001
Starting at$1450
3296
Sq Ft
2
Story
4
Bed
2.5
Bath
2
Car
Plan Collection
Plan Collection
Plan Collection
Plan#153-1750
Starting at$1100
2889
Sq Ft
2
Story
4
Bed
2.5
Bath
2
Car
View All

Other Plans By This Designer

Plan Collection
Plan Collection
Plan Collection
Plan#120-2655
Starting at$1005
800
Sq Ft
1
Story
2
Bed
1
Bath
0
Car
Plan Collection
Plan Collection
Plan Collection
Plan#120-2696
Starting at$1105
1642
Sq Ft
1
Story
3
Bed
2.5
Bath
2
Car
Plan Collection
Plan Collection
Plan Collection
Plan#120-1117
Starting at$1105
1699
Sq Ft
2
Story
3
Bed
2.5
Bath
2
Car