Estimate your costs based on your location and materials.
Yes! This plan can be customized—contact us for a free quote.


Yes! This plan can be customized—contact us for a free quote.
PLEASE NOTE!! For this designer, The PDF that comes with the PRINT Packages (5 set+PDF and 8 set+PDF) is NOT Modifiable - it is for printing ONLY! PLEASE NOTE!! Optional Foundations (foundations that cost extra money) will take 5-10 business days to complete.
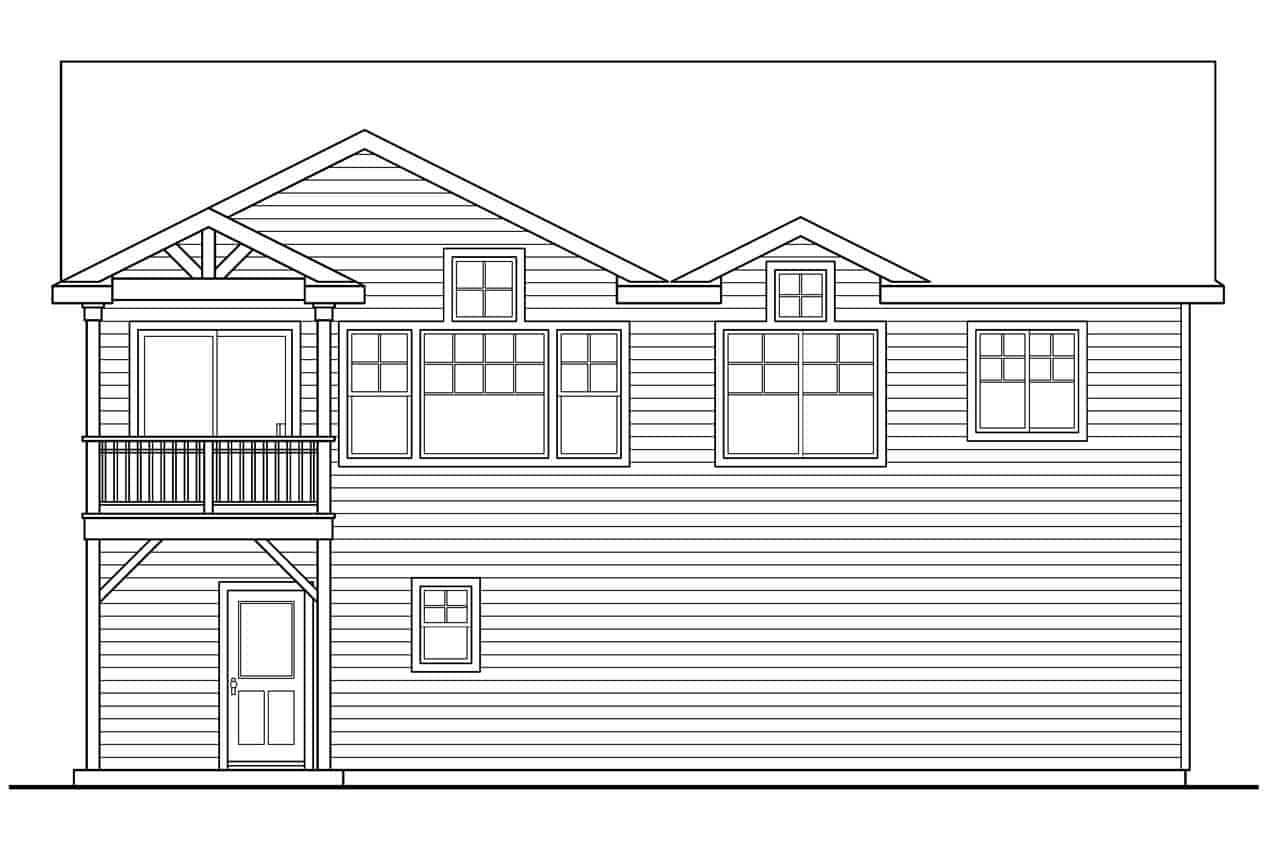
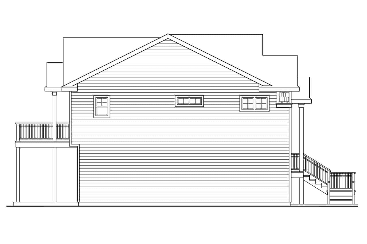
Cape Cod home plans. In this Cape Cod-style beach cottage, the main floor is one flight up from ground level. The vaulted living room is open to the dining room, which is linked to the kitchen. Glass sparkles across most of the rear wall, so these joined areas are both bright and spacious. The vaulted owners' suite boasts a large bathroom with a deep soaking tub and walk-in closet. In this Cape Cod-style beach cottage, the main floor is one flight up from ground level. A double garage with plenty of storage space fills the #108-1531's lower level, along with an unfinished family...
Estimate your costs based on your location and materials.
All sales of house plans, modifications, and other products found on this site are final. No refunds or exchanges can be given once your order has begun the fulfillment process. Please see our Policies for additional information.
All plans offered on ThePlanCollection.com are designed to conform to the local building codes when and where the original plan was drawn.
The homes as shown in photographs and renderings may differ from the actual blueprints. For more detailed information, please review the floor plan images herein carefully.
Estimate your costs based on your location and materials.






