20x20 Tiny House with 1-Bedroom and Nook/Breakfast Area

Front elevation of tiny cabin home (ThePlanCollection: House Plan #126-1022)

Images/Plans copyrighted by designer. Photos may reflect homeowner modifications.

About House Plan #126-1022

Sq Ft
400
Sq Ft
Bedrooms
1
Bedrooms
Bathroom
1
Baths
Half Baths
0
Half Baths
Bedrooms
0
Cars
Bedrooms
1
Stories
Bedrooms
20' 0'
Width
Bedrooms
20
Depth
Starting at$1125.00What's included
STEP 1Bedrooms
STEP 2Bedrooms
STEP 3Bedrooms

Subtotal:$0
Plan Collection

How much will it cost to build?

Estimate your costs based on your location and materials.

Free Cost Instant Estimator

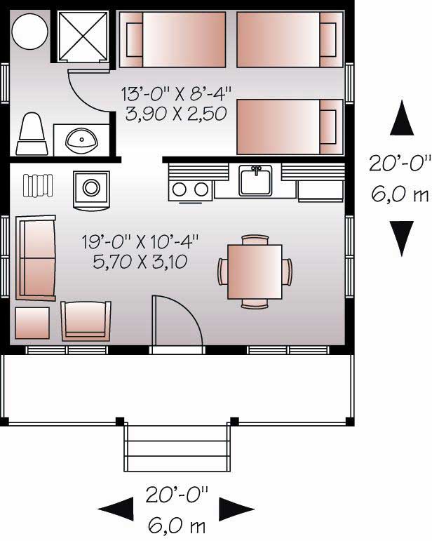
Floor Plans

Floor Plan First Story
Floor Plan First Story
Plan Collection

Can I modify this plan?

Yes! This plan can be customized—contact us for a free quote.

Additional Notes from Designer

Please Note that the designer's office will be closed for the summer holidays from July 20th to August 2024. This designer's plans take 7-10 additional business days regardless of the type of delivery (express, email, etc). Please keep this in mind when ordering. BCIN is available for this designer - please submit a modification request for cost and time frame. PLEASE NOTE! This designer's plans do NOT come with an electrical layout. They will provide an electrical layout for an additional fee.

In order to respect the building code and also meet the multiple needs of our customers, you will have two (2) versions of the cottage design included in your plan.

A first version will include an uninsulated and unheated version for seasonal use only (3 seasons). The walls are 2 '' x 4 '', the floor joists are 2 '' x 8 '' and the rafters are 2 '' x 8 '' for the roof.

The second version is an isolated and heated version for permanent occupation (4 seasons). For this one the walls are 2 '' x 6 '', the floor joists are 2 '' x 10 '' and the roof is designed with roof trusses.

Both versions are provided on screw piles to ensure stability. However we can design other types of foundation for this plan to better suit your needs if necessary.  You need simply contact us for details.

House Plan Description

This 400 sq ft floor plan is perfect for the coming generation of tiny homes! The house plan also works as a vacation home or for the outdoorsman. The small front porch is perfect for enjoying the fresh air. The 20x20 tiny house comes with all the essentials. A small kitchenette is open to the cozy living room. There is 1 bedroom and 1 bath. Who says small cabins can't be comfortable?

Home Details

Summary
Plan #:126-1022
Starting at:$1125.00
Floors:1
Bedrooms:1
Full Baths:1
Half Baths:0
Garage:
Square Footage
Heated Area:400 Sq. Ft.
First Floor:400 Sq. Ft.
Unheated Area:
Dimensions
Ridge Height:14' 0''
Architectural Styles
Exterior Wall Material
Wood Siding
Roofing Type
Gable
Roofing Material
Asphalt Shingles
Special Feature
FireplaceVaulted CeilingsOpen Floor Plan
Fireplaces
One Fireplace
Exterior Wall Framing
2x62x4
Building Lot Type
Flat SiteNarrow Lot Design
Kitchen Features
Eat-In Kitchen
Porches and Exterior Features
Covered Front Porch

What’s Included

Most plan sets include the following:

icon text-secondary-400 includedExterior elevations

icon text-secondary-400 includedFoundation plan

icon text-secondary-400 includedMain floor plan

icon text-secondary-400 includedUpper floor plan (if applicable)

icon text-secondary-400 includedRoof plan

icon text-secondary-400 includedTruss diagrams & building sections

icon text-secondary-400 includedConstruction details

icon text-secondary-400 includedTypical wall section

What’s Not Included

These items are  NOT included:

icon text-secondary-400 includedArchitectural or Engineering Stamp - handled locally if required.

icon text-secondary-400 includedSite Plan - handled locally when required.

icon text-secondary-400 includedNo Electrical

icon text-secondary-400 includedMechanical Drawings (location of heating and air equipment and ductwork) - your subcontractors handle this.

icon text-secondary-400 includedPlumbing Drawings (drawings showing the actual plumbing pipe sizes and locations) - your subcontractors handle this.

icon text-secondary-400 includedEnergy calculations - handled locally when required.

Related House Plans

Plan Collection
Plan Collection
Plan Collection
Plan#141-1076
Starting at$1205
400
Sq Ft
1
Story
1
Bed
1
Bath
0
Car
Plan Collection
Plan Collection
Plan Collection
Plan#116-1013
Starting at$0
456
Sq Ft
1
Story
1
Bed
1
Bath
0
Car
Plan Collection
Plan Collection
Plan Collection
Plan#178-1345
Starting at$680
395
Sq Ft
1
Story
1
Bed
1
Bath
0
Car
View All

Other Plans By This Designer

Plan Collection
Plan Collection
Plan Collection
Plan#126-1856
Starting at$1180
943
Sq Ft
2
Story
3
Bed
2
Bath
0
Car
Plan Collection
Plan Collection
Plan Collection
Plan#126-1325
Starting at$3065
7624
Sq Ft
3
Story
16
Bed
8
Bath
0
Car
Plan Collection
Plan Collection
Plan Collection
Plan#126-1855
Starting at$1125
700
Sq Ft
1
Story
2
Bed
1
Bath
0
Car