3-Bedroom, 2862 Sq Ft Country Plan with Walk-in Pantry

This is a colored rendering of these Traditional Homeplans.

Images/Plans copyrighted by designer. Photos may reflect homeowner modifications.

About House Plan #168-1087

Sq Ft
2862
Sq Ft
Bedrooms
3
Bedrooms
Bathroom
2
Baths
Half Baths
1
Half Baths
Bedrooms
2
Cars
Bedrooms
2
Stories
Bedrooms
62' 0'
Width
Bedrooms
44
Depth
Starting at$1600.00What's included
STEP 1Bedrooms
STEP 2Bedrooms
STEP 3Bedrooms

Subtotal:$0
Plan Collection

How much will it cost to build?

Estimate your costs based on your location and materials.

Free Cost Instant Estimator

Floor Plans

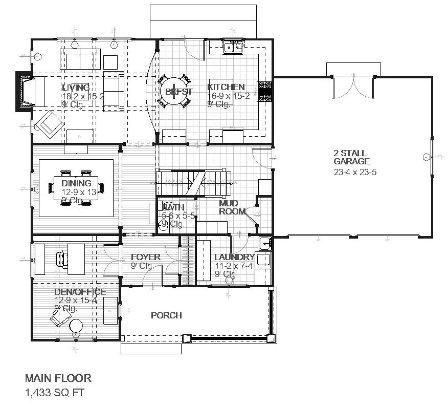
Floor Plan First Story
Floor Plan First Story
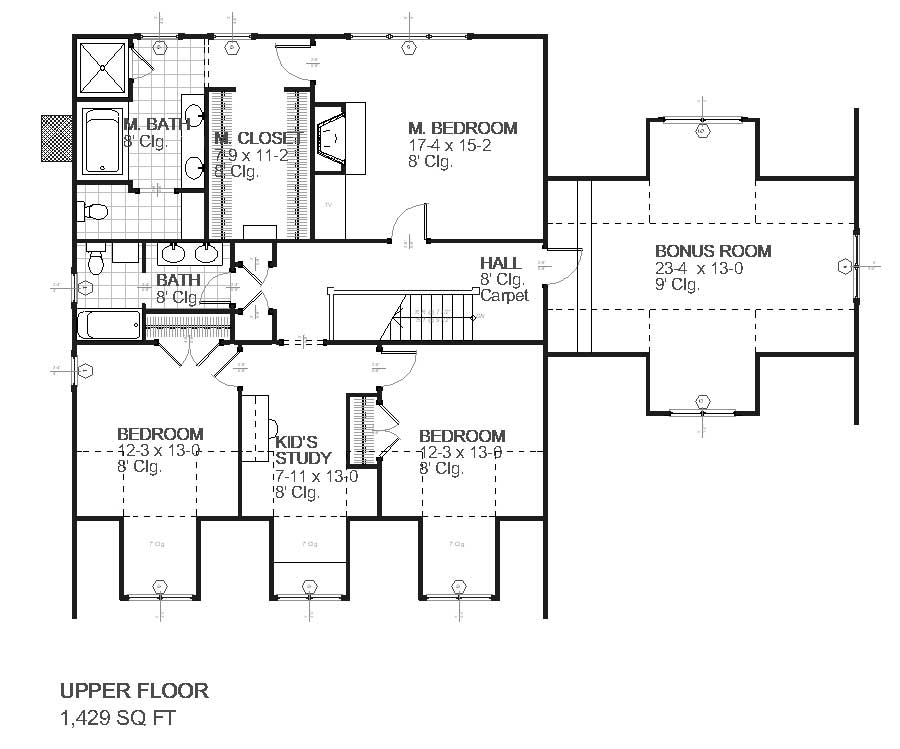
Floor Plan Second Story
Floor Plan Second Story
Plan Collection

Can I modify this plan?

Yes! This plan can be customized—contact us for a free quote.

House Plan Description

This set of Traditional Home Plans has a lot of great features. The three classy gable dormers and one shed dormer are a great way of bringing natural sunlight in, and the chimney offers a cozy way of heating the home.

Home Details

Summary
Plan #:168-1087
Starting at:$1600.00
Floors:2
Bedrooms:3
Full Baths:2
Half Baths:1
Garage:
Square Footage
Heated Area:2862 Sq. Ft.
First Floor:1433 Sq. Ft.
Second Floor:1429 Sq. Ft.
Unheated Area:
Dimensions
Depth:44' 10''
Architectural Styles
Exterior Wall Material
Brick
Roofing Type
Gable/Shed Dormer
Roofing Material
Asphalt Shingles
Special Feature
FireplaceDining RoomHome OfficeMud RoomBonus RoomGame RoomMain Level LaundrySplit BathroomDen
Garage Type
Attached GarageFront Entry
Fireplaces
One Fireplace
Building Lot Type
Flat Site
Kitchen Features
Kitchen IslandNook/Breakfast AreaEat-In Kitchen
Porches and Exterior Features
Covered Front Porch
Master Suite Features
Main Floor MasterMaster BathroomWalk In ClosetSecond Floor Master

What’s Included

Most plan sets include the following:

icon text-secondary-400 includedTitle Sheet

icon text-secondary-400 includedFloor Plans

icon text-secondary-400 includedWindow & Door Sizes

icon text-secondary-400 includedExterior Elevations

icon text-secondary-400 includedBuilding and/or Wall sections

icon text-secondary-400 includedRoof plans

icon text-secondary-400 includedFoundation Plans

What’s Not Included

These items are  NOT included:

icon text-secondary-400 includedArchitectural or Engineering Stamp - handled locally if required.

icon text-secondary-400 includedSite Plan - handled locally when required.

icon text-secondary-400 includedMechanical Drawings (location of heating and air equipment and duct work) - your subcontractors handle this.

icon text-secondary-400 includedPlumbing Drawings (drawings showing the actual plumbing pipe sizes and locations) - your subcontractors handle this.

icon text-secondary-400 includedEnergy calculations - handled locally when required.

Related House Plans

Plan Collection
Plan Collection
Plan Collection
Plan#126-1297
Starting at$1715
2257
Sq Ft
2
Story
3
Bed
2.5
Bath
2
Car
Plan Collection
Plan Collection
Plan Collection
Plan#198-1006
Starting at$2395
2587
Sq Ft
2
Story
3
Bed
2.5
Bath
3
Car
Plan Collection
Plan Collection
Plan Collection
Plan#117-1134
Starting at$1095
2214
Sq Ft
2
Story
3
Bed
2.5
Bath
2
Car
View All

Other Plans By This Designer

Plan Collection
Plan Collection
Plan Collection
Plan#168-1132
Starting at$3050
4580
Sq Ft
2
Story
5
Bed
5
Bath
3
Car
Plan Collection
Plan Collection
Plan Collection
Plan#168-1129
Starting at$2500
1930
Sq Ft
2
Story
3
Bed
2.5
Bath
2
Car
Plan Collection
Plan Collection
Plan Collection
Plan#168-1099
Starting at$2600
2609
Sq Ft
2
Story
4
Bed
3.5
Bath
3
Car