Estimate your costs based on your location and materials.
Yes! This plan can be customized—contact us for a free quote.
Yes! This plan can be customized—contact us for a free quote.
PLEASE NOTE: Materials Lists are based on the STOCK plan ONLY without modifications! Custom materials lists are available if you modify a plan. Please ask for a quote.
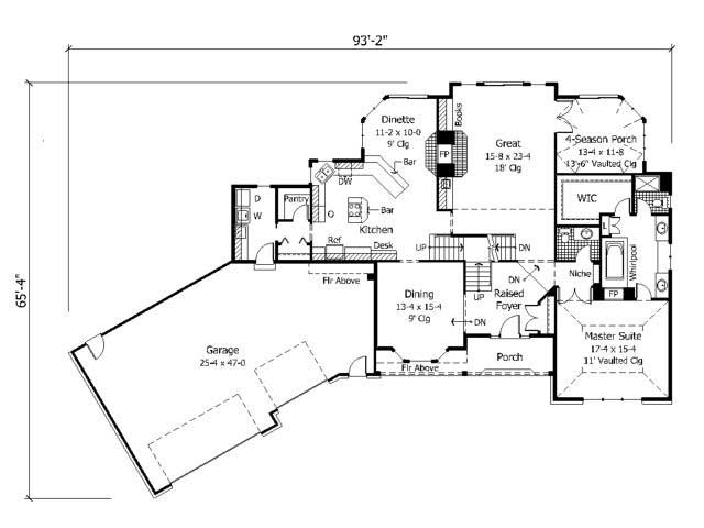
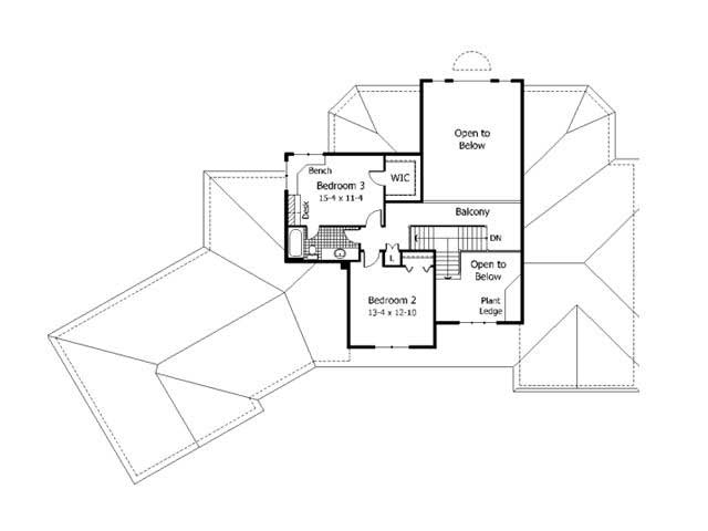
As big as this home is, there's nothing ostentatious about the design. It emphasizes space and rooms that are ideal for a variety of activities. The kitchen boasts a convenient cooktop island with a snack bar, a built-in desk and an angled snack bar into the dinette, which features a see-through fireplace into the Great Room. With the sumptuous, vaulted master suite downstairs, two more bedrooms upstairs--one with a built-in desk, a walk-in closet and a corner window seat--round out the home's sleeping areas.
Estimate your costs based on your location and materials.
All sales of house plans, modifications, and other products found on this site are final. No refunds or exchanges can be given once your order has begun the fulfillment process. Please see our Policies for additional information.
All plans offered on ThePlanCollection.com are designed to conform to the local building codes when and where the original plan was drawn.
The homes as shown in photographs and renderings may differ from the actual blueprints. For more detailed information, please review the floor plan images herein carefully.
Estimate your costs based on your location and materials.