4-Bedroom, 5101 Sq Ft European Plan with Covered Rear Porch

Luxury Homeplans DDI97-215 color front elevation.

Images/Plans copyrighted by designer. Photos may reflect homeowner modifications.

About House Plan #119-1189

Sq Ft
5101
Sq Ft
Bedrooms
4
Bedrooms
Bathroom
4
Baths
Half Baths
1
Half Baths
Bedrooms
4
Cars
Bedrooms
2
Stories
Bedrooms
96' 0'
Width
Bedrooms
86
Depth
Starting at$2045.00What's included
STEP 1Bedrooms
STEP 2Bedrooms
STEP 3Bedrooms

Subtotal:$0
Plan Collection

How much will it cost to build?

Estimate your costs based on your location and materials.

Free Cost Instant Estimator

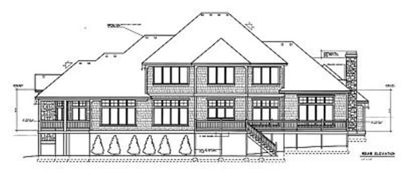
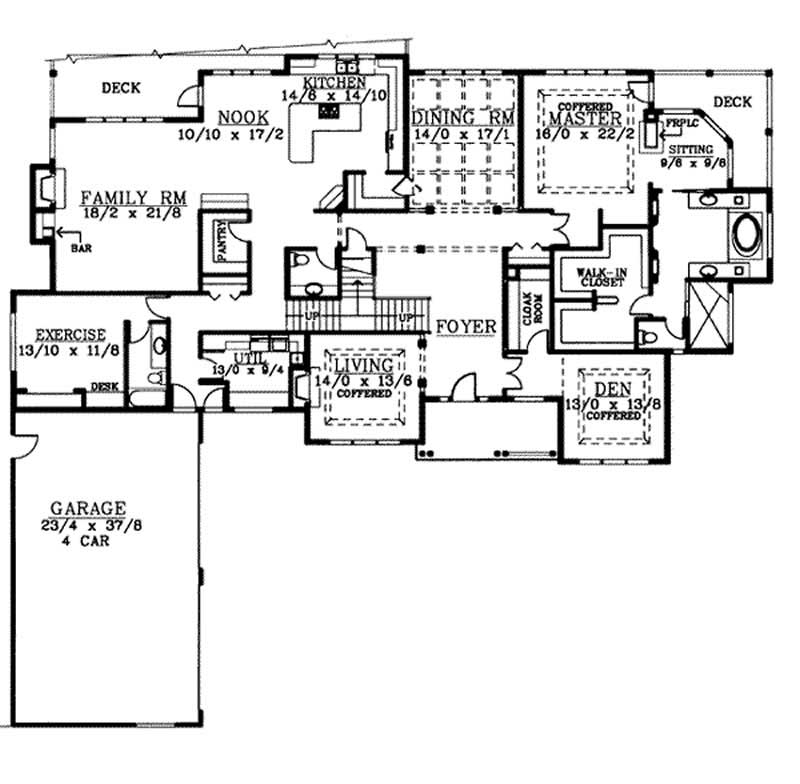
Floor Plans

Main Floor Plan
Main Floor Plan
Upper Floor Plan
Upper Floor Plan
Plan Collection

Can I modify this plan?

Yes! This plan can be customized—contact us for a free quote.

House Plan Description

Luxury house plans DDI97-215 have the following features: Suited for view lot. Volume/vaulted ceiling and open floor plan. Family room, bonus room, den/office/computer, and exercise. House plans also have a Kitchen island, walk-in pantry, and a dining room.

Home Details

Summary
Plan #:119-1189
Starting at:$2045.00
Floors:2
Bedrooms:4
Full Baths:4
Half Baths:1
Garage:
Square Footage
Heated Area:5101 Sq. Ft.
First Floor:3825 Sq. Ft.
Second Floor:1276 Sq. Ft.
Unheated Area:
Bonus Room:270 Sq. Ft.
Dimensions
Ridge Height:36' 0''
Architectural Styles
Exterior Wall Material
BrickRock/Stone
Roofing Type
Hip
Roofing Material
Asphalt Shingles
Special Feature
In Home GymDining RoomBonus RoomFamily RoomMain Level LaundryDen
Garage Type
Attached GarageCourtyard Entry
Kitchen Features
Kitchen IslandNook/Breakfast AreaWalk-in Pantry
Porches and Exterior Features
Courtyard
Master Suite Features
Main Floor MasterMaster BathroomWalk In ClosetSitting AreaPrivate Deck

What’s Included

Most plan sets include the following:

icon text-secondary-400 includedFLOOR PLAN: Showing all dimensions, window and door locations, laminated beams, columns, floor materials, ceiling heights, fireplace size, and specifications.

icon text-secondary-400 includedFOUNDATION PLAN: Dimensioned plan detailing the location and size of footings, slabs, reinforcing steel, and other structural elements that are required to support the load of the upper floors.

icon text-secondary-400 includedROOF PLAN: Dimensioned plan showing the elements that make up the roof, including notation of spacing and schematics of peaks and valleys.

icon text-secondary-400 includedELECTRICAL PLAN:Specifications, notes, schedules, and plan defining the location of panels, service, lighting fixtures, switches, outlets, fans, etc. NOTE – PLEASE VERIFY

icon text-secondary-400 includedFRONT, REAR, AND SIDE ELEVATIONS:The front, rear, and side elevations of the house as drawn. Shows placement of doors & windows on exterior of house, as well as roof pitches, ridge heights, and locations of chimney, exterior vents, etc. The elevations show the positioning of the final grade of the lot, exterior finishes, and other details that are necessary to give the home exterior architectural styling.

icon text-secondary-400 includedCROSS SECTIONS AND INTERIOR DETAILS:Explain certain special conditions more appropriately. A cross section is basically a view of the home (or parts of the home) if it were sliced down the center. These details can be helpful for the contractor.

icon text-secondary-400 includedFRONT PERSPECTIVE: Artist’s sketch to provide an idea of what the house would look like once built and landscaped.

What’s Not Included

These items are  NOT included:

icon text-secondary-400 includedArchitectural or Engineering Stamp - handled locally if required.

icon text-secondary-400 includedSite Plan - handled locally when required.

icon text-secondary-400 includedMechanical Drawings (location of heating and air equipment and duct work) - your subcontractors handle this.

icon text-secondary-400 includedPlumbing Drawings (drawings showing the actual plumbing pipe sizes and locations) - your subcontractors handle this.

icon text-secondary-400 includedEnergy calculations - handled locally when required.

Related House Plans

Plan Collection
Plan Collection
Plan Collection
Plan#161-1017
Starting at$3400
4587
Sq Ft
2
Story
4
Bed
4.5
Bath
4
Car
Plan Collection
Plan Collection
Plan Collection
Plan#107-1015
Starting at$1800
5555
Sq Ft
2
Story
4
Bed
4.5
Bath
3
Car
Plan Collection
Plan Collection
Plan Collection
Plan#175-1064
Starting at$2300
5841
Sq Ft
2
Story
4
Bed
4.5
Bath
3
Car
View All

Other Plans By This Designer

Plan Collection
Plan Collection
Plan Collection
Plan#119-1000
Starting at$1045
1557
Sq Ft
2
Story
3
Bed
2
Bath
0
Car
Plan Collection
Plan Collection
Plan Collection
Plan#119-1186
Starting at$995
983
Sq Ft
1
Story
3
Bed
2
Bath
2
Car
Plan Collection
Plan Collection
Plan Collection
Plan#119-1050
Starting at$995
1143
Sq Ft
1.5
Story
3
Bed
3
Bath
2
Car