3-Bedroom, 2832 Sq Ft Florida Style Plan with Nook/Breakfast Area

Main image for house plan # 20509

Images/Plans copyrighted by designer. Photos may reflect homeowner modifications.

About House Plan #107-1090

Sq Ft
2832
Sq Ft
Bedrooms
3
Bedrooms
Bathroom
2
Baths
Half Baths
0
Half Baths
Bedrooms
2
Cars
Bedrooms
1
Stories
Bedrooms
40' 0'
Width
Bedrooms
80
Depth
Starting at$1250.00What's included
STEP 1Bedrooms
STEP 2Bedrooms
STEP 3Bedrooms

Subtotal:$0
Plan Collection

How much will it cost to build?

Estimate your costs based on your location and materials.

Free Cost Instant Estimator

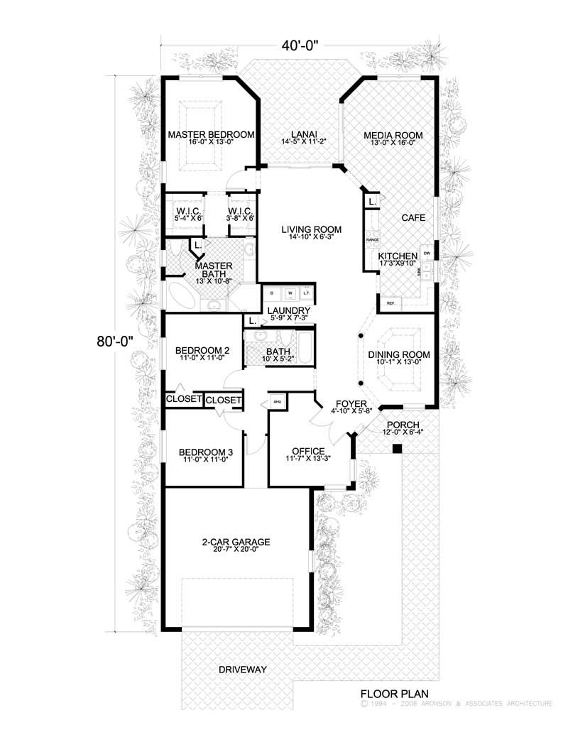
Floor Plans

Main Level
Main Level
Plan Collection

Can I modify this plan?

Yes! This plan can be customized—contact us for a free quote.

House Plan Description

This three Bedroom home is full of amenities including a Home Office. It has both a covered Entry and a covered rear Lanai. It also contains a large central Living Room plus a Media Room. This compact design makes efficient use of every square inch and with concrete block exterior construction you have an amazing house waiting to be built.

Home Details

Summary
Plan #:107-1090
Starting at:$1250.00
Floors:1
Bedrooms:3
Full Baths:2
Half Baths:0
Garage:
Square Footage
Heated Area:2832 Sq. Ft.
First Floor:2093 Sq. Ft.
Unheated Area:
Garage:480 Sq. Ft.
Dimensions
Ridge Height:19-7' 0''
Architectural Styles
Exterior Wall Material
Stucco
Roofing Type
Hip
Roofing Material
Other Composites
Roof Pitch
6/12
Ceiling Height
9 Foot Ceiling
Special Feature
Home OfficeMedia Room
Garage Type
Attached GarageFront Entry
Exterior Wall Framing
Concrete
Building Lot Type
Narrow Lot Design

What’s Included

Most plan sets include the following:

icon text-secondary-400 includedFloor plan

icon text-secondary-400 includedKitchen & Bath layout

icon text-secondary-400 includedExterior elevations

icon text-secondary-400 includedSections

icon text-secondary-400 includedStructural plans

icon text-secondary-400 includedFoundation plan

icon text-secondary-400 includedRoof plan

icon text-secondary-400 includedMechanical layout

icon text-secondary-400 includedElectrical layout

What’s Not Included

These items are  NOT included:

icon text-secondary-400 includedArchitectural or Engineering Stamp - handled locally if required.

icon text-secondary-400 includedSite Plan - handled locally when required.

icon text-secondary-400 includedMechanical Drawings (location of heating and air equipment and ductwork) - your subcontractors handle this.

icon text-secondary-400 includedPlumbing Drawings (drawings showing the actual plumbing pipe sizes and locations) - your subcontractors handle this.

icon text-secondary-400 includedEnergy calculations - handled locally when required.

Related House Plans

Plan Collection
Plan Collection
Plan Collection
Plan#106-1271
Starting at$1295
2365
Sq Ft
1
Story
3
Bed
2.5
Bath
0
Car
Plan Collection
Plan Collection
Plan Collection
Plan#133-1021
Starting at$0
2208
Sq Ft
1
Story
3
Bed
2
Bath
2
Car
Plan Collection
Plan Collection
Plan Collection
Plan#175-1046
Starting at$900
2165
Sq Ft
1
Story
3
Bed
2
Bath
2
Car
View All

Other Plans By This Designer

Plan Collection
Plan Collection
Plan Collection
Plan#107-1002
Starting at$1900
6175
Sq Ft
2
Story
6
Bed
7.5
Bath
4
Car
Plan Collection
Plan Collection
Plan Collection
Plan#107-1096
Starting at$1150
1619
Sq Ft
1
Story
3
Bed
2
Bath
2
Car
Plan Collection
Plan Collection
Plan Collection
Plan#107-1182
Starting at$1900
6412
Sq Ft
2
Story
7
Bed
7.5
Bath
3
Car