4-Bedroom, 4197 Sq Ft European Plan with Peninsula/Eating Bar

Main image for house plan # 20343

Images/Plans copyrighted by designer. Photos may reflect homeowner modifications.

About House Plan #100-1021

Sq Ft
4197
Sq Ft
Bedrooms
4
Bedrooms
Bathroom
5
Baths
Half Baths
0
Half Baths
Bedrooms
3
Cars
Bedrooms
2
Stories
Bedrooms
69' 2'
Width
Bedrooms
90
Depth
Starting at$2100.00What's included
STEP 1Bedrooms
STEP 2Bedrooms
STEP 3Bedrooms

Subtotal:$0
Plan Collection

How much will it cost to build?

Estimate your costs based on your location and materials.

Free Cost Instant Estimator

Floor Plans

MAIN LEVEL FLOOR PLAN
MAIN LEVEL FLOOR PLAN
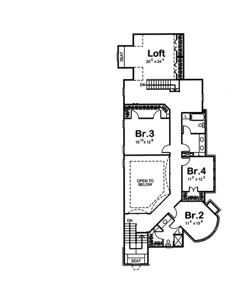
SECOND LEVEL FLOOR PLAN
SECOND LEVEL FLOOR PLAN
Plan Collection

Can I modify this plan?

Yes! This plan can be customized—contact us for a free quote.

Additional Notes from Designer

The CAD File formats are drawn in SoftPlan. PLEASE NOTE: Plans by this designer do NOT come with FRAMING! This designer does not do ICF.

House Plan Description

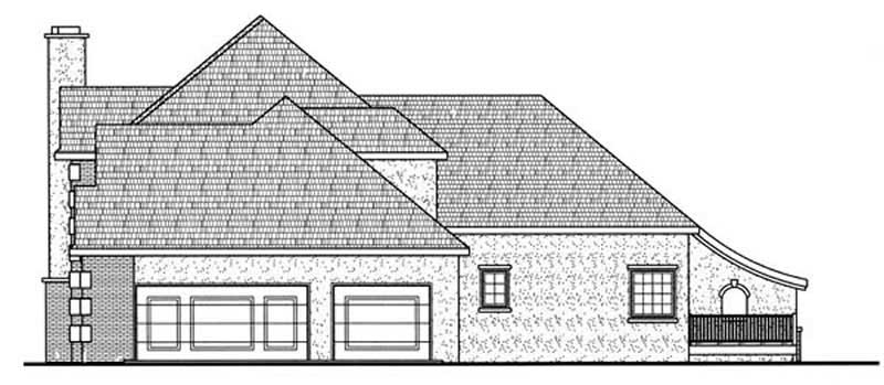
The #100-1021 home plan is a two story, European style house plan with 4197 total living square feet. This plans beautiful exterior is made of brick and stucco. The interior has 4 bedrooms, 5 bathrooms, and an attached, 3 car garage. This plan has a matchless exterior design, providing for a very unique and beautiful home plan. The master bedroom and bath is located on the main floor on the far left side. The rest of the main floor includes the large great room which is open to the above level, straight across is the dining room, den, and the breakfast and kitchen areas. The flagstone patio...

Home Details

Summary
Plan #:100-1021
Starting at:$2100.00
Floors:2
Bedrooms:4
Full Baths:5
Half Baths:0
Garage:
Square Footage
Heated Area:4197 Sq. Ft.
First Floor:2491 Sq. Ft.
Second Floor:1706 Sq. Ft.
Unheated Area:
Garage:873 Sq. Ft.
Dimensions
Width:69' 2''
Depth:90' 8''
Architectural Styles
Exterior Wall Material
BrickStucco
Roofing Type
Hip
Ceiling Height
9 Foot Ceiling8 Foot Ceiling
Garage Type
Attached Garage
Fireplaces
Three Fireplaces
Exterior Wall Framing
2x4

What’s Included

Most plan sets include the following:

icon text-secondary-400 includedCover Sheet: Shows the front elevation and typical notes and requirements.

icon text-secondary-400 includedExterior Elevations: Shows the front, rear and sides of the home including exterior materials, details and measurements

icon text-secondary-400 includedFloor Plans: Shows the placement of walls and the dimensions for rooms, doors, windows, stairways, etc. for each floor.

icon text-secondary-400 includedElectrical Plans: Shows the location of outlets, fixtures and switches. They are shown as a separate sheet to make the floor plans more legible

icon text-secondary-400 includedFoundation Plans: will include a basement, crawlspace or slab depending on what is available for that home plan. (Please refer to the home plan's details sheet to see what foundation options are available for a specific home plan.) The foundation plan details the layout and construction of the foundation.

icon text-secondary-400 includedRoof Plan

icon text-secondary-400 includedTypical wall section

icon text-secondary-400 includedTypical stair section

icon text-secondary-400 includedCabinets are shown on all plans.

What’s Not Included

These items are  NOT included:

icon text-secondary-400 includedArchitectural or Engineering Stamp - handled locally if required.

icon text-secondary-400 includedSite Plan - handled locally when required.

icon text-secondary-400 includedMechanical Drawings (location of heating and air equipment and ductwork) - your subcontractors handle this.

icon text-secondary-400 includedPlumbing Drawings (drawings showing the actual plumbing pipe sizes and locations) - your subcontractors handle this.

icon text-secondary-400 includedEnergy calculations - handled locally when required.

Related House Plans

Plan Collection
Plan Collection
Plan Collection
Plan#153-1054
Starting at$2250
5100
Sq Ft
2
Story
4
Bed
5.5
Bath
3
Car
Plan Collection
Plan Collection
Plan Collection
Plan#134-1114
Starting at$0
4461
Sq Ft
2
Story
4
Bed
5
Bath
3
Car
Plan Collection
Plan Collection
Plan Collection
Plan#137-1617
Starting at$1030
4997
Sq Ft
2
Story
4
Bed
5
Bath
3
Car
View All

Other Plans By This Designer

Plan Collection
Plan Collection
Plan Collection
Plan#100-1364
Starting at$350
224
Sq Ft
1.5
Story
0
Bed
0
Bath
0
Car
Plan Collection
Plan Collection
Plan Collection
Plan#100-1311
Starting at$1800
2978
Sq Ft
2
Story
6
Bed
2.5
Bath
2
Car
Plan Collection
Plan Collection
Plan Collection
Plan#100-1054
Starting at$1800
1412
Sq Ft
1
Story
3
Bed
1.5
Bath
2
Car