Estimate your costs based on your location and materials.
Yes! This plan can be customized—contact us for a free quote.
Yes! This plan can be customized—contact us for a free quote.
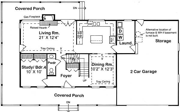
This 2,033 sq. ft. layout is wonderful to look at and live in. A wrap porch leads to a welcoming entry. A comfy den (or guest room), half bath, and dining room with ceiling treatment enjoy special fore-front status. The living room is both elegant and relaxed with fireplace and French doors to the back porch. The kitchen is surrounded with cabinetry. Its central island is always ready to serve. The upstairs master bath has cathedral ceilings, a luxurious bath with corner platform tub, walk-in closet, and an adjacent sitting room. Bedrooms #2 and #3 have an easy time of it as well with...
Estimate your costs based on your location and materials.
All sales of house plans, modifications, and other products found on this site are final. No refunds or exchanges can be given once your order has begun the fulfillment process. Please see our Policies for additional information.
All plans offered on ThePlanCollection.com are designed to conform to the local building codes when and where the original plan was drawn.
The homes as shown in photographs and renderings may differ from the actual blueprints. For more detailed information, please review the floor plan images herein carefully.
Estimate your costs based on your location and materials.