Estimate your costs based on your location and materials.
Yes! This plan can be customized—contact us for a free quote.
Yes! This plan can be customized—contact us for a free quote.
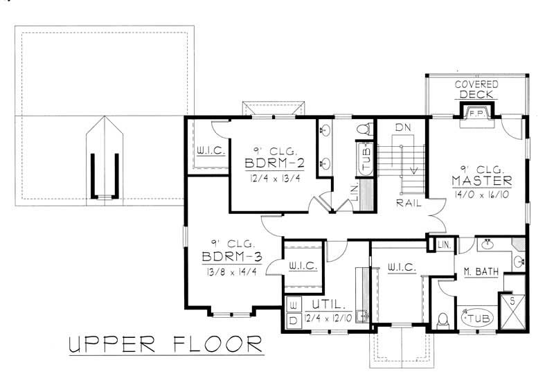
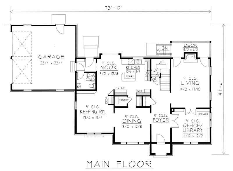
House Plan RDI-3015TS1-PB is a modestly large home with spacious rooms and high ceilings all in a traditional floor plan. The entire home features 9' ceilings. The house has a formal dining room for serving guests and a large living room for entertainment. There is a Keeping Room for additional space. The bedrooms are all secluded upstairs together with a big laundry room making this house great for entertaining guests. The master suite is elegant with a private bath that has a walk-in shower and a large walk-in closet. The upper floor also houses two more bedrooms. The home has an...
Estimate your costs based on your location and materials.
All sales of house plans, modifications, and other products found on this site are final. No refunds or exchanges can be given once your order has begun the fulfillment process. Please see our Policies for additional information.
All plans offered on ThePlanCollection.com are designed to conform to the local building codes when and where the original plan was drawn.
The homes as shown in photographs and renderings may differ from the actual blueprints. For more detailed information, please review the floor plan images herein carefully.
Estimate your costs based on your location and materials.