4-Bedroom, 4480 Sq Ft Contemporary Plan with Main Floor Master

Contemporary home (ThePlanCollection: Plan #156-1509)

Images/Plans copyrighted by designer. Photos may reflect homeowner modifications.

About House Plan #156-1509

Sq Ft
4480
Sq Ft
Bedrooms
4
Bedrooms
Bathroom
4
Baths
Half Baths
1
Half Baths
Bedrooms
3
Cars
Bedrooms
3
Stories
Bedrooms
48' 0'
Width
Bedrooms
78
Depth
Starting at$1150.00What's included
STEP 1Bedrooms
STEP 2Bedrooms
STEP 3Bedrooms

Subtotal:$0
Plan Collection

How much will it cost to build?

Estimate your costs based on your location and materials.

Free Cost Instant Estimator

Floor Plans

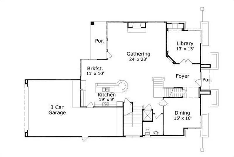
MAIN LEVEL FLOOR PLAN
MAIN LEVEL FLOOR PLAN
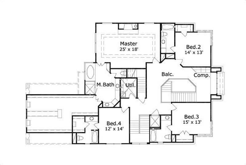
SECOND LEVEL FLOOR PLAN
SECOND LEVEL FLOOR PLAN
THIRD LEVEL FLOOR PLAN
THIRD LEVEL FLOOR PLAN
Plan Collection

Can I modify this plan?

Yes! This plan can be customized—contact us for a free quote.

Additional Notes from Designer

CAD files may take up to 3 business days to receive - please contact us for availability.

House Plan Description

This gorgeous contemporary home has 4,480 square feet of living space. The two-story floor plan includes 4 bedrooms and 4.5 bathrooms.

Home Details

Summary
Plan #:156-1509
Starting at:$1150.00
Floors:3
Bedrooms:4
Full Baths:4
Half Baths:1
Garage:
Square Footage
Heated Area:4480 Sq. Ft.
First Floor:2004 Sq. Ft.
Second Floor:2476 Sq. Ft.
Third Floor:347 Sq. Ft.
Unheated Area:
Dimensions
Ridge Height:33'3' 0''
Architectural Styles
Exterior Wall Material
StuccoRock/Stone
Roofing Type
Hip
Ceiling Height
10 Foot Ceiling9 Foot Ceiling

What’s Included

Most plan sets include the following:

icon text-secondary-400 includedExterior,

icon text-secondary-400 includedElevations

icon text-secondary-400 includedFloor Plans

icon text-secondary-400 includedElectrical Layout

icon text-secondary-400 includedBuilding Sections

icon text-secondary-400 includedRoofing Plan

icon text-secondary-400 includedInterior Elevations

icon text-secondary-400 includedGeneral Details

icon text-secondary-400 includedWall Sections

What’s Not Included

These items are  NOT included:

icon text-secondary-400 includedArchitectural or Engineering Stamp - handled locally if required.

icon text-secondary-400 includedSite Plan - handled locally when required.

icon text-secondary-400 includedMechanical Drawings (location of heating and air equipment and ductwork) - your subcontractors handle this.

icon text-secondary-400 includedPlumbing Drawings (drawings showing the actual plumbing pipe sizes and locations) - your subcontractors handle this.

icon text-secondary-400 includedEnergy calculations - handled locally when required.

Related House Plans

Plan Collection
Plan Collection
Plan Collection
Plan#156-1256
Starting at$1200
4557
Sq Ft
3
Story
4
Bed
4
Bath
2
Car
Plan Collection
Plan Collection
Plan Collection
Plan#156-1513
Starting at$1200
4866
Sq Ft
3
Story
4
Bed
4.5
Bath
2
Car
Plan Collection
Plan Collection
Plan Collection
Plan#156-1916
Starting at$1200
4461
Sq Ft
3
Story
4
Bed
4
Bath
2
Car
View All

Other Plans By This Designer

Plan Collection
Plan Collection
Plan Collection
Plan#156-1607
Starting at$1450
5509
Sq Ft
3
Story
6
Bed
6.5
Bath
3
Car
Plan Collection
Plan Collection
Plan Collection
Plan#156-1085
Starting at$1100
3900
Sq Ft
2
Story
4
Bed
3.5
Bath
3
Car
Plan Collection
Plan Collection
Plan Collection
Plan#156-1734
Starting at$1700
6775
Sq Ft
2
Story
6
Bed
4.5
Bath
2
Car