3-Bedroom, 2313 Sq Ft Log Cabin Plan with Kitchen Island

Front elevation of Log Cabin home (ThePlanCollection: House Plan #162-1052)

Images/Plans copyrighted by designer. Photos may reflect homeowner modifications.

About House Plan #162-1052

Sq Ft
2313
Sq Ft
Bedrooms
3
Bedrooms
Bathroom
3
Baths
Half Baths
0
Half Baths
Bedrooms
1
Cars
Bedrooms
2
Stories
Bedrooms
38' 0'
Width
Bedrooms
73
Depth
Starting at$1100.00What's included
STEP 1Bedrooms
STEP 2Bedrooms
STEP 3Bedrooms

Subtotal:$0
Plan Collection

How much will it cost to build?

Estimate your costs based on your location and materials.

Free Cost Instant Estimator

Floor Plans

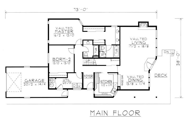
Main Floor Plan
Main Floor Plan
Second Floor Plan
Second Floor Plan
Plan Collection

Can I modify this plan?

Yes! This plan can be customized—contact us for a free quote.

House Plan Description

House Plan 162-1052 is a beautiful vacation cabin with all the amenities of your home. The main rooms are open and large with a moderate kitchen. There are two bedrooms and a master suite. There are three full bathrooms all close to a bedroom. Perhaps a favorite characteristic of this home would be it's open loft and high ceilings above the main rooms.

Home Details

Summary
Plan #:162-1052
Starting at:$1100.00
Floors:2
Bedrooms:3
Full Baths:3
Half Baths:0
Garage:
Square Footage
Heated Area:2313 Sq. Ft.
First Floor:1678 Sq. Ft.
Second Floor:635 Sq. Ft.
Unheated Area:
Garage:346 Sq. Ft.
Dimensions
Ridge Height:21' 0''
Architectural Styles
Exterior Wall Material
Wood Siding
Roofing Type
Gable
Roof Pitch
7/12
Ceiling Height
10 Foot Ceiling8 Foot Ceiling
Special Feature
FireplaceSplit BathroomStorage
Garage Type
Attached GarageSide Entry
Fireplaces
One Fireplace
Exterior Wall Framing
2x6
Building Lot Type
Narrow Lot Design

What’s Included

Most plan sets include the following:

icon text-secondary-400 includedExterior Elevations

icon text-secondary-400 includedFloor Plans

icon text-secondary-400 includedFoundation Plan

icon text-secondary-400 includedRoof Framing Plan

icon text-secondary-400 includedBuilding Sections

icon text-secondary-400 includedWall Sections

icon text-secondary-400 includedStair Detail

icon text-secondary-400 includedCabinet Elevations

icon text-secondary-400 includedNotes

icon text-secondary-400 includedElectrical Layout

icon text-secondary-400 includedDoor & Window Sizes

What’s Not Included

These items are  NOT included:

icon text-secondary-400 includedArchitectural or Engineering Stamp - handled locally if required.

icon text-secondary-400 includedSite Plan - handled locally when required.

icon text-secondary-400 includedMechanical Drawings (location of heating and air equipment and ductwork) - your subcontractors handle this.

icon text-secondary-400 includedPlumbing Drawings (drawings showing the actual plumbing pipe sizes and locations) - your subcontractors handle this.

icon text-secondary-400 includedEnergy calculations - handled locally when required.

Related House Plans

Plan Collection
Plan Collection
Plan Collection
Plan#108-1275
Starting at$900
1749
Sq Ft
2
Story
3
Bed
3
Bath
0
Car
Plan Collection
Plan Collection
Plan Collection
Plan#132-1418
Starting at$1245
2272
Sq Ft
2
Story
3
Bed
3.5
Bath
2
Car
Plan Collection
Plan Collection
Plan Collection
Plan#132-1193
Starting at$1245
2281
Sq Ft
2
Story
3
Bed
3
Bath
0
Car
View All

Other Plans By This Designer

Plan Collection
Plan Collection
Plan Collection
Plan#162-1039
Starting at$1500
4219
Sq Ft
1
Story
4
Bed
3
Bath
3
Car
Plan Collection
Plan Collection
Plan Collection
Plan#162-1028
Starting at$1100
2059
Sq Ft
2
Story
3
Bed
2.5
Bath
2
Car
Plan Collection
Plan Collection
Plan Collection
Plan#162-1037
Starting at$1500
4466
Sq Ft
1
Story
4
Bed
4.5
Bath
3
Car