3-Bedroom, 2696 Sq Ft Log Cabin Plan with Fireplace

Front Elevation of this Log Cabin House (#132-1144) at The Plan Collection.

Images/Plans copyrighted by designer. Photos may reflect homeowner modifications.

About House Plan #132-1144

Sq Ft
2696
Sq Ft
Bedrooms
3
Bedrooms
Bathroom
3
Baths
Half Baths
1
Half Baths
Bedrooms
0
Cars
Bedrooms
2
Stories
Bedrooms
50' 0'
Width
Bedrooms
49
Depth
Starting at$1245.00What's included
STEP 1Bedrooms
STEP 2Bedrooms
STEP 3Bedrooms

Subtotal:$0
Plan Collection

How much will it cost to build?

Estimate your costs based on your location and materials.

Free Cost Instant Estimator

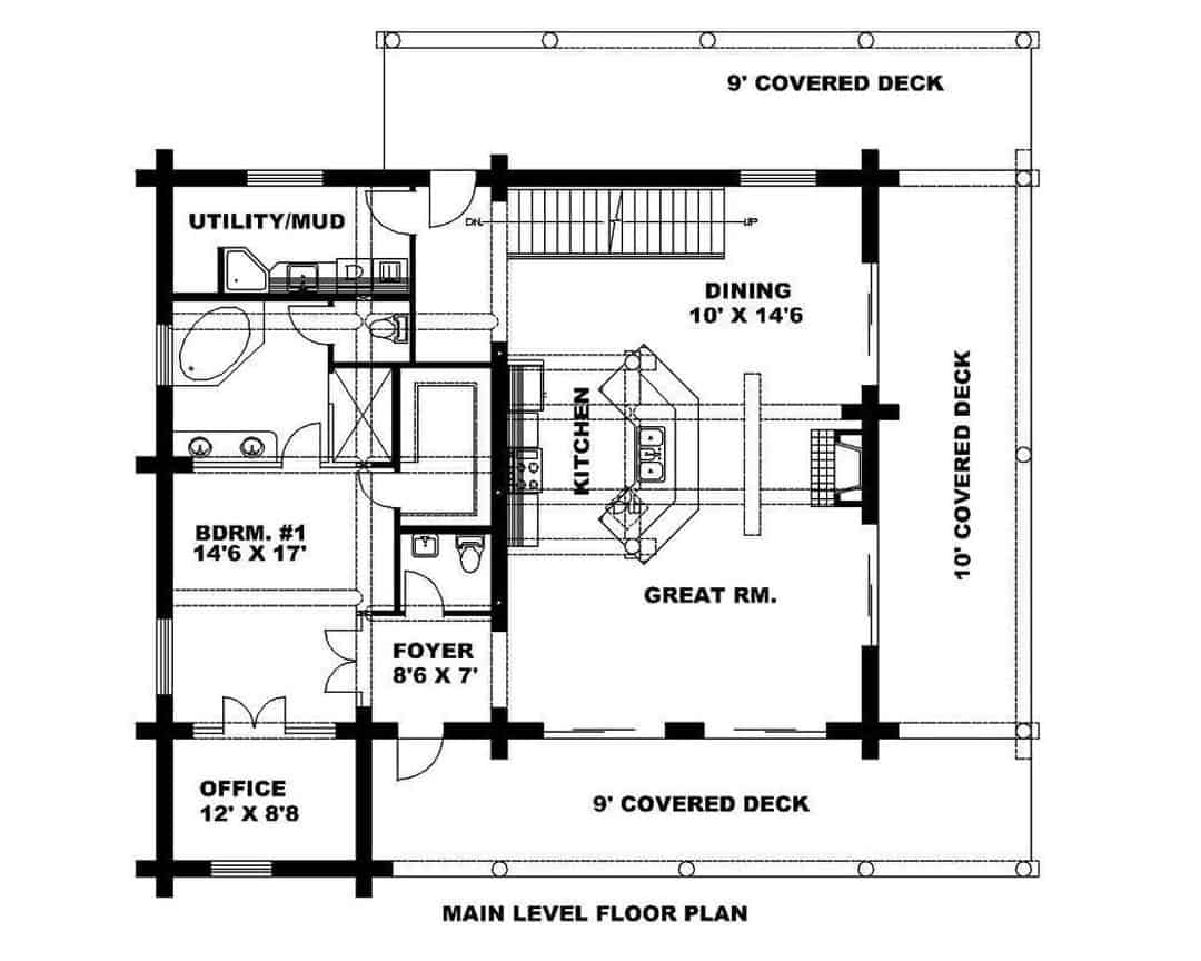
Floor Plans

Main Level
Main Level
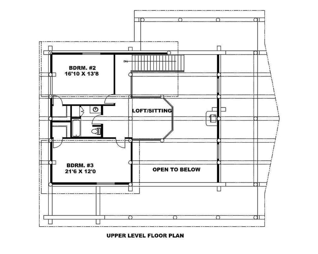
Upper Level
Upper Level
Lower Level
Lower Level
Plan Collection

Can I modify this plan?

Yes! This plan can be customized—contact us for a free quote.

Additional Notes from Designer

PLEASE NOTE! The CAD - Unlimited package is NOT an unlimited license - it is a license to build up to 5 homes.

House Plan Description

This enchanting log cabin home design has 2696 square feet of living space. The two-story floor plan includes 3 bedrooms and 3.5 bathrooms. The exterior of this home has a charming covered front porch. Inside, this house design's floor plan includes an attractive main floor master.

Home Details

Summary
Plan #:132-1144
Starting at:$1245.00
Floors:2
Bedrooms:3
Full Baths:3
Half Baths:1
Garage:
Square Footage
Heated Area:2696 Sq. Ft.
First Floor:1773 Sq. Ft.
Second Floor:923 Sq. Ft.
Unheated Area:
Basement:1834 Sq. Ft.
Dimensions
Depth:49' 8''
Ridge Height:30' 0''
Architectural Styles
Exterior Wall Material
Log
Roof Pitch
12/124/12
Special Feature
FireplaceHome OfficeMain Level LaundryLoftVaulted CeilingsOpen Floor Plan
Garage Type
Attached GarageUnder Main Floor Entry
Exterior Wall Framing
Log
Building Lot Type
Down Site
Kitchen Features
Peninsula/Eating Bar
Porches and Exterior Features
Covered Front PorchCovered Rear Porch
Master Suite Features
Main Floor MasterMaster BathroomWalk In Closet

What’s Included

Most plan sets include the following:

icon text-secondary-400 includedExterior elevations: shows the home on all four sides, calls out exterior finishes, rooflines, window and door locations.

icon text-secondary-400 includedFloor plans: includes interior and exterior dimensions, window/door schedule, wall framing details.

icon text-secondary-400 includedFoundation plan: shows footing, stem wall, and slab placement, including all connection details.

icon text-secondary-400 includedFloor and roof framing plans show truss/rafter placements, including all beams/connection details.

icon text-secondary-400 includedCross-sections: cut-through view of the structure from roof to foundation, shows framing, plate heights, insulation, etc.

icon text-secondary-400 includedElectrical layout

icon text-secondary-400 includedGeneral notes/details to cover the entirety of the project

What’s Not Included

These items are  NOT included:

icon text-secondary-400 includedArchitectural or Engineering Stamp - handled locally if required.

icon text-secondary-400 includedSite Plan - handled locally when required.

icon text-secondary-400 includedMechanical Drawings (location of heating and air equipment and ductwork) - your subcontractors handle this.

icon text-secondary-400 includedPlumbing Drawings (drawings showing the actual plumbing pipe sizes and locations) - your subcontractors handle this.

icon text-secondary-400 includedEnergy calculations - handled locally when required.

Related House Plans

Plan Collection
Plan Collection
Plan Collection
Plan#132-1418
Starting at$1245
2272
Sq Ft
2
Story
3
Bed
3.5
Bath
2
Car
Plan Collection
Plan Collection
Plan Collection
Plan#202-1018
Starting at$1000
2554
Sq Ft
2
Story
3
Bed
3.5
Bath
3
Car
Plan Collection
Plan Collection
Plan Collection
Plan#132-1193
Starting at$1245
2281
Sq Ft
2
Story
3
Bed
3
Bath
0
Car
View All

Other Plans By This Designer

Plan Collection
Plan Collection
Plan Collection
Plan#132-1697
Starting at$1145
1176
Sq Ft
1
Story
2
Bed
2
Bath
0
Car
Plan Collection
Plan Collection
Plan Collection
Plan#132-1313
Starting at$1245
2281
Sq Ft
2
Story
3
Bed
2.5
Bath
0
Car
Plan Collection
Plan Collection
Plan Collection
Plan#132-1107
Starting at$995
689
Sq Ft
1
Story
1
Bed
1
Bath
0
Car