1-Bedroom, 2389 Sq Ft Country Plan with Master Bathroom

Main image for house plan # 16977

Images/Plans copyrighted by designer. Photos may reflect homeowner modifications.

About House Plan #173-1048

Sq Ft
2389
Sq Ft
Bedrooms
1
Bedrooms
Bathroom
0
Baths
Half Baths
0
Half Baths
Bedrooms
2
Cars
Bedrooms
1
Stories
Bedrooms
70' 8'
Width
Bedrooms
53
Depth
Starting at$1200.00What's included
STEP 1Bedrooms
STEP 2Bedrooms
STEP 3Bedrooms

Subtotal:$0
Plan Collection

How much will it cost to build?

Estimate your costs based on your location and materials.

Free Cost Instant Estimator

Floor Plans

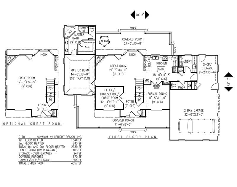
Main Floor Plan
Main Floor Plan
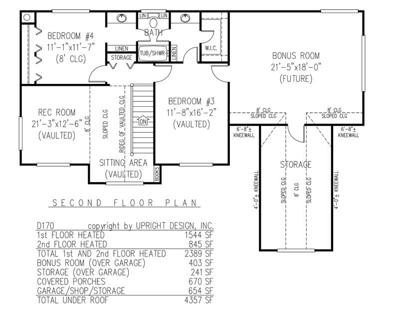
Second Floor Plan
Second Floor Plan
Plan Collection

Can I modify this plan?

Yes! This plan can be customized—contact us for a free quote.

Additional Notes from Designer

House Plan Description

Plan D170 is a functional design with plenty of space. There is a two car garage and two covered porches. The kitchen, great room, and master suite are all large and accommodating. The second level has large bonus and storage rooms. See also plan D170g3 and D171.

Home Details

Summary
Plan #:173-1048
Starting at:$1200.00
Floors:1
Bedrooms:1
Full Baths:0
Half Baths:0
Garage:
Square Footage
Heated Area:2389 Sq. Ft.
First Floor:1544 Sq. Ft.
Second Floor:845 Sq. Ft.
Unheated Area:
Basement:1544 Sq. Ft.
Bonus Room:403 Sq. Ft.
Garage:654 Sq. Ft.
Dimensions
Width:70' 8''
Ridge Height:28'6' 0''
Architectural Styles
Exterior Wall Material
BrickWood Siding
Roofing Type
Gable
Roof Pitch
9/12
Ceiling Height
9 Foot Ceiling
Garage Type
Attached GarageSide Entry
Fireplaces
One Fireplace
Exterior Wall Framing
2x4

What’s Included

Most plan sets include the following:

icon text-secondary-400 includedFoundation plan

icon text-secondary-400 includedFloor plan(s)

icon text-secondary-400 includedElectrical layout

icon text-secondary-400 includedExterior elevations

icon text-secondary-400 includedCabinet details

icon text-secondary-400 includedInterior elevations (when necessary)

icon text-secondary-400 includedRoof plan

icon text-secondary-400 includedTypical wall section

icon text-secondary-400 includedStandard detail sheet

What’s Not Included

These items are  NOT included:

icon text-secondary-400 includedArchitectural or Engineering Stamp - handled locally if required.

icon text-secondary-400 includedSite Plan - handled locally when required.

icon text-secondary-400 includedMechanical Drawings (location of heating and air equipment and duct work) - your subcontractors handle this.

icon text-secondary-400 includedPlumbing Drawings (drawings showing the actual plumbing pipe sizes and locations) - your subcontractors handle this.

icon text-secondary-400 includedEnergy calculations - handled locally when required.

Related House Plans

Plan Collection
Plan Collection
Plan Collection
Plan#170-2861
Starting at$910
1873
Sq Ft
1
Story
1
Bed
0
Bath
2
Car
Plan Collection
Plan Collection
Plan Collection
Plan#131-1194
Starting at$900
2176
Sq Ft
1
Story
1
Bed
0
Bath
2
Car
Plan Collection
Plan Collection
Plan Collection
Plan#131-1234
Starting at$900
2370
Sq Ft
1
Story
1
Bed
0
Bath
2
Car
View All

Other Plans By This Designer

Plan Collection
Plan Collection
Plan Collection
Plan#173-1029
Starting at$1300
2750
Sq Ft
2
Story
5
Bed
3.5
Bath
2
Car
Plan Collection
Plan Collection
Plan Collection
Plan#173-1003
Starting at$1300
2989
Sq Ft
2
Story
4
Bed
2.5
Bath
3
Car
Plan Collection
Plan Collection
Plan Collection
Plan#173-1033
Starting at$1200
2433
Sq Ft
2
Story
4
Bed
2.5
Bath
2
Car