6-Bedroom, 3073 Sq Ft European Plan with Peninsula/Eating Bar

Main image for house plan # 14655

Images/Plans copyrighted by designer. Photos may reflect homeowner modifications.

About House Plan #115-1059

Sq Ft
3073
Sq Ft
Bedrooms
6
Bedrooms
Bathroom
3
Baths
Half Baths
0
Half Baths
Bedrooms
3
Cars
Bedrooms
2
Stories
Bedrooms
62' 0'
Width
Bedrooms
42
Depth
Starting at$2000.00What's included
STEP 1Bedrooms
STEP 2Bedrooms
STEP 3Bedrooms

Subtotal:$0
Plan Collection

How much will it cost to build?

Estimate your costs based on your location and materials.

Free Cost Instant Estimator

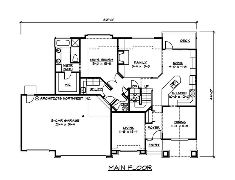
Floor Plans

Main Floor Plan
Main Floor Plan
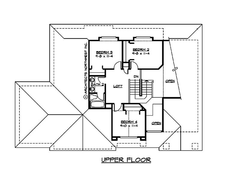
Second Floor Plan
Second Floor Plan
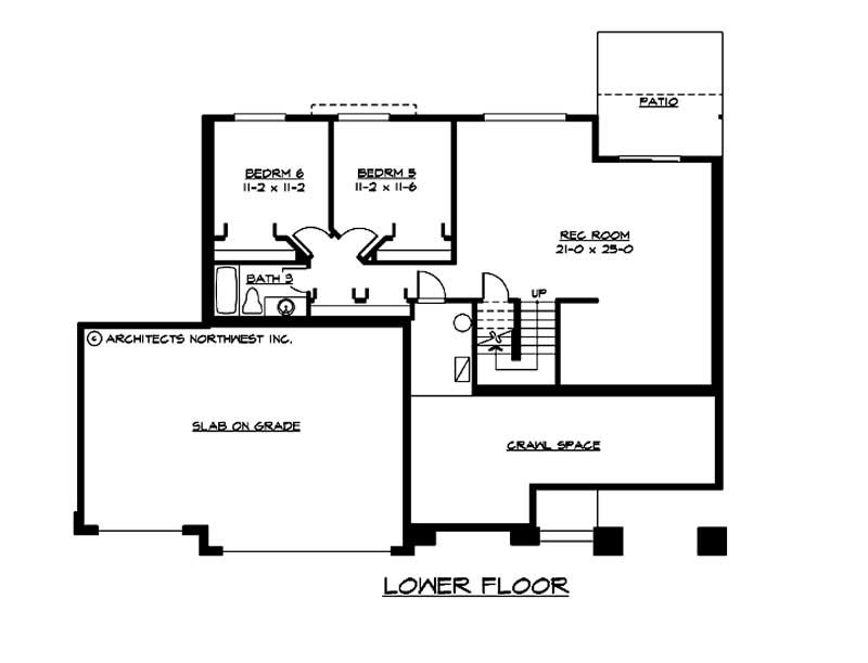
Basement Floor Plan
Basement Floor Plan
Basement Floor Plan
Basement Floor Plan
Plan Collection

Can I modify this plan?

Yes! This plan can be customized—contact us for a free quote.

Additional Notes from Designer

Please Note: The plans by this designer DO NOT include electrical plans or electrical layout plans. NOTE: If you are building this home in Washington State, please contact us BEFORE placing your order!

House Plan Description

This beautiful and amazing houseplan has many features to offer you. Located on the main floor you have the master bedroom secluded from the rest of the rooms in the home. The master suite has the nice features of a walk-in closet along with a relaxing master bath. The utility room is located just oft from the garage for dirty clothes to get wash immediately. Then you can easily freshen up in the powder room that is located just oft from the garage as well. The kitchen is very narrow but still provides plenty of room for cooking. You have a nice and cozy fireplace that you can enjoy in the...

Home Details

Summary
Plan #:115-1059
Starting at:$2000.00
Floors:2
Bedrooms:6
Full Baths:3
Half Baths:0
Garage:
Square Footage
Heated Area:3073 Sq. Ft.
First Floor:1492 Sq. Ft.
Second Floor:608 Sq. Ft.
Unheated Area:
Dimensions
Architectural Styles
Exterior Wall Material
Vinyl Siding
Special Feature
FireplaceFamily Room
Garage Type
Attached Garage

What’s Included

Most plan sets include the following:

icon text-secondary-400 includedCover Sheet

icon text-secondary-400 includedSchedule Sheet

icon text-secondary-400 includedDetail Sheet

icon text-secondary-400 includedFoundation Plan Sheet

icon text-secondary-400 includedFloor Plan/Floor Framing Sheet(s)

icon text-secondary-400 includedRoof Framing Plan Sheet

icon text-secondary-400 includedElevation Sheet

icon text-secondary-400 includedBuilding Section Sheet

What’s Not Included

These items are  NOT included:

icon text-secondary-400 includedArchitectural or Engineering Stamp - handled locally if required.

icon text-secondary-400 includedSite Plan - handled locally when required.

icon text-secondary-400 includedMechanical Drawings (location of heating and air equipment and ductwork) - your subcontractors handle this.

icon text-secondary-400 includedPlumbing Drawings (drawings showing the actual plumbing pipe sizes and locations) - your subcontractors handle this.

icon text-secondary-400 includedEnergy calculations - handled locally when required.

Related House Plans

Plan Collection
Plan Collection
Plan Collection
Plan#120-2488
Starting at$1255
3322
Sq Ft
2
Story
6
Bed
3.5
Bath
3
Car
Plan Collection
Plan Collection
Plan Collection
Plan#135-1022
Starting at$1725
2785
Sq Ft
2
Story
6
Bed
3.5
Bath
3
Car
Plan Collection
Plan Collection
Plan Collection
Plan#135-1026
Starting at$1955
3549
Sq Ft
2
Story
6
Bed
3.5
Bath
4
Car
View All

Other Plans By This Designer

Plan Collection
Plan Collection
Plan Collection
Plan#115-1370
Starting at$1400
1000
Sq Ft
2
Story
2
Bed
2
Bath
0
Car
Plan Collection
Plan Collection
Plan Collection
Plan#115-1150
Starting at$1600
2025
Sq Ft
2
Story
3
Bed
2.5
Bath
3
Car
Plan Collection
Plan Collection
Plan Collection
Plan#115-1371
Starting at$1400
1000
Sq Ft
2
Story
2
Bed
2
Bath
0
Car