Estimate your costs based on your location and materials.
Yes! This plan can be customized—contact us for a free quote.
Yes! This plan can be customized—contact us for a free quote.
No BCIN available. We advise you purchase a CAD and use a local engineer for BCIN Additional Use Licenses and Unlimited Use Licenses are available. After purchasing the plan, the designer will charge you separately for the additional licenses.
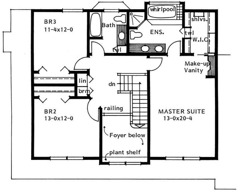
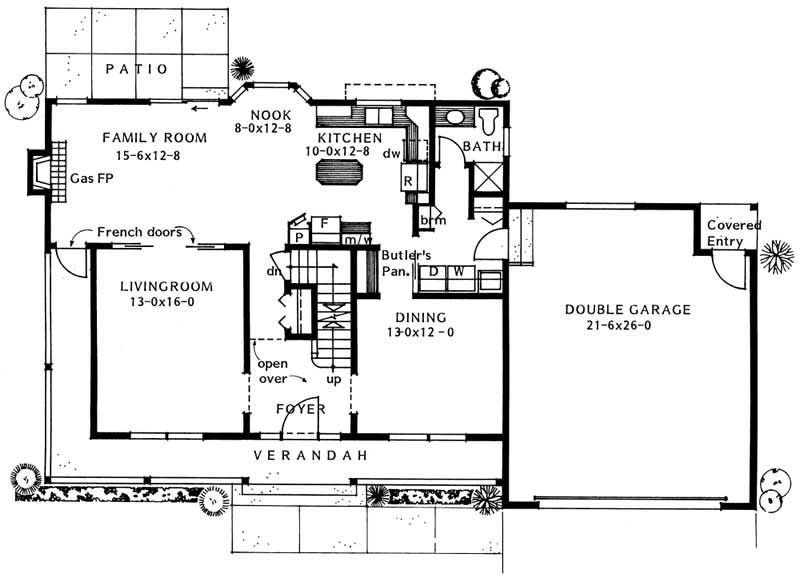
Here's a home that combines centuries-old traditional styling with a bright and spacious open plan. The combination family room, nook, and kitchen area is over 33'-0 in length...offering lots of possibilities for decorating. At one end is the gas fireplace feature wall and at the opposite end a very-well planned kitchen with island. The bay-windowed nook further enhances the appearance of the room and increases the space even more. We've added a very practical feature, something from a by-gone era...the butler's or serving pantry between the kitchen and dining room. This...
Estimate your costs based on your location and materials.
All sales of house plans, modifications, and other products found on this site are final. No refunds or exchanges can be given once your order has begun the fulfillment process. Please see our Policies for additional information.
All plans offered on ThePlanCollection.com are designed to conform to the local building codes when and where the original plan was drawn.
The homes as shown in photographs and renderings may differ from the actual blueprints. For more detailed information, please review the floor plan images herein carefully.
Estimate your costs based on your location and materials.