3-Bedroom, 1396 Sq Ft Ranch Plan with Covered Rear Porch

Main image for house plan # 13094

Images/Plans copyrighted by designer. Photos may reflect homeowner modifications.

About House Plan #177-1019

Sq Ft
1396
Sq Ft
Bedrooms
3
Bedrooms
Bathroom
1
Baths
Half Baths
0
Half Baths
Bedrooms
2
Cars
Bedrooms
1
Stories
Bedrooms
48' 0'
Width
Bedrooms
54
Depth
Starting at$1090.00What's included
STEP 1Bedrooms
STEP 2Bedrooms
STEP 3Bedrooms

Subtotal:$0
Plan Collection

How much will it cost to build?

Estimate your costs based on your location and materials.

Free Cost Instant Estimator

Floor Plans

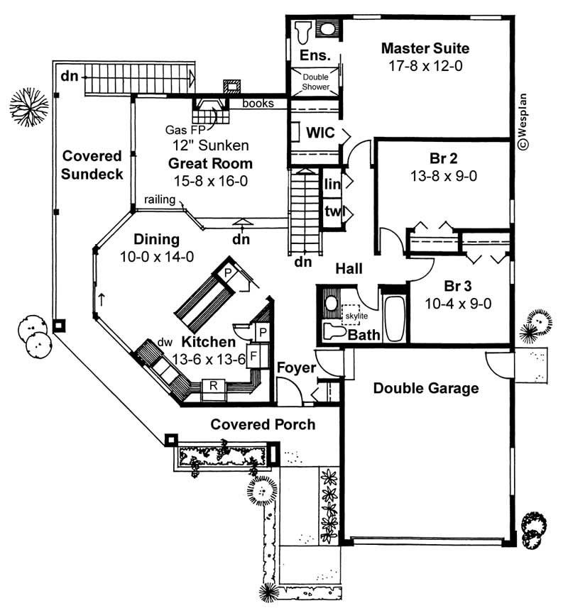
MAIN FLOOR PLAN
MAIN FLOOR PLAN
Plan Collection

Can I modify this plan?

Yes! This plan can be customized—contact us for a free quote.

Additional Notes from Designer

No BCIN available. We advise you purchase a CAD and use a local engineer for BCIN Additional Use Licenses and Unlimited Use Licenses are available. After purchasing the plan, the designer will charge you separately for the additional licenses.

House Plan Description

An open floor plan is shared by the sunken living room, dining, and kitchen areas. An open staircase leads to the unfinished daylight basement which will provide ample room for future bedrooms, bathroom and laundry facilities. To the right of the plan, are three good-sized bedrooms with lots of closet space...the master suite has a big walk-in closet and its own bath featuring a double shower.

Home Details

Summary
Plan #:177-1019
Starting at:$1090.00
Floors:1
Bedrooms:3
Full Baths:1
Half Baths:0
Garage:
Square Footage
Heated Area:1396 Sq. Ft.
First Floor:1396 Sq. Ft.
Unheated Area:
Dimensions
Architectural Styles
Exterior Wall Material
Stucco
Roof Pitch
6/12
Ceiling Height
8 Foot Ceiling
Garage Type
Attached Garage
Exterior Wall Framing
2x6

What’s Included

Most plan sets include the following:

icon text-secondary-400 includedElectrical Layout

icon text-secondary-400 includedElevations

icon text-secondary-400 includedFoundation

icon text-secondary-400 includedTypically Roof Trusses, a few A-Frames might have the Stick Frame, but mostly roof trusses

icon text-secondary-400 includedWall Section

icon text-secondary-400 includedBuilding Sections

icon text-secondary-400 includedMaterial list available for purchase

icon text-secondary-400 includedCabinet elevations will vary depending on the plan (plans with inside modeling will typically have the cabinet elevations)

What’s Not Included

These items are  NOT included:

icon text-secondary-400 includedArchitectural or Engineering Stamp - handled locally if required.

icon text-secondary-400 includedSite Plan - handled locally when required.

icon text-secondary-400 includedMechanical Drawings (location of heating and air equipment and duct work) - your subcontractors handle this.

icon text-secondary-400 includedPlumbing Drawings (drawings showing the actual plumbing pipe sizes and locations) - your subcontractors handle this.

icon text-secondary-400 includedEnergy calculations - handled locally when required.

Related House Plans

Plan Collection
Plan Collection
Plan Collection
Plan#126-1552
Starting at$1340
1147
Sq Ft
1
Story
3
Bed
1
Bath
0
Car
Plan Collection
Plan Collection
Plan Collection
Plan#158-1298
Starting at$755
1180
Sq Ft
1
Story
3
Bed
1
Bath
1
Car
Plan Collection
Plan Collection
Plan Collection
Plan#126-1416
Starting at$1395
1350
Sq Ft
1
Story
3
Bed
1
Bath
0
Car
View All

Other Plans By This Designer

Plan Collection
Plan Collection
Plan Collection
Plan#177-1054
Starting at$1040
624
Sq Ft
1
Story
1
Bed
1
Bath
0
Car
Plan Collection
Plan Collection
Plan Collection
Plan#177-1057
Starting at$1040
928
Sq Ft
1
Story
2
Bed
2
Bath
2
Car
Plan Collection
Plan Collection
Plan Collection
Plan#177-1055
Starting at$1090
1244
Sq Ft
1
Story
3
Bed
2
Bath
1
Car