3-Bedroom, 2170 Sq Ft Cape Cod Plan with Covered Rear Porch

Main image for house plan # 11263

Images/Plans copyrighted by designer. Photos may reflect homeowner modifications.

About House Plan #174-1076

Sq Ft
2170
Sq Ft
Bedrooms
3
Bedrooms
Bathroom
2
Baths
Half Baths
0
Half Baths
Bedrooms
2
Cars
Bedrooms
1
Stories
Bedrooms
46' 4'
Width
Bedrooms
67
Depth
Starting at$760.00What's included
STEP 1Bedrooms
STEP 2Bedrooms
STEP 3Bedrooms

Subtotal:$0
Plan Collection

How much will it cost to build?

Estimate your costs based on your location and materials.

Free Cost Instant Estimator

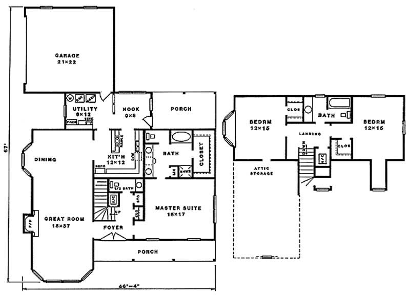
Floor Plans

FIRST FLOOR PLAN
FIRST FLOOR PLAN
Plan Collection

Can I modify this plan?

Yes! This plan can be customized—contact us for a free quote.

House Plan Description

These Country House Plans make a perfect farmhouse or vacation cabin.

Home Details

Summary
Plan #:174-1076
Starting at:$760.00
Floors:1
Bedrooms:3
Full Baths:2
Half Baths:0
Garage:
Square Footage
Heated Area:2170 Sq. Ft.
First Floor:2170 Sq. Ft.
Unheated Area:
Dimensions
Width:46' 4''
Architectural Styles
Exterior Wall Material
Vinyl SidingWood Siding
Roofing Type
Gable/Dormer
Roofing Material
Asphalt Shingles
Special Feature
FireplaceDining RoomFamily RoomMain Level LaundrySplit BathroomStorage
Garage Type
Attached GarageSide Entry
Fireplaces
One Fireplace
Building Lot Type
Flat Site
Kitchen Features
Nook/Breakfast AreaPeninsula/Eating BarEat-In Kitchen
Porches and Exterior Features
Covered Front PorchCovered Rear Porch
Master Suite Features
Main Floor MasterMaster BathroomSitting Area

What’s Included

Most plan sets include the following:

icon text-secondary-400 includedExterior elevations

icon text-secondary-400 includedFloor plan (with ceiling joists sizes)

icon text-secondary-400 includedCross-sections

icon text-secondary-400 includedCabinet elevations

icon text-secondary-400 includedFoundation plan

icon text-secondary-400 includedRoof plan

icon text-secondary-400 includedElectrical layout

What’s Not Included

These items are  NOT included:

icon text-secondary-400 includedArchitectural or Engineering Stamp - handled locally if required.

icon text-secondary-400 includedSite Plan - handled locally when required.

icon text-secondary-400 includedMechanical Drawings (location of heating and air equipment and duct work) - your subcontractors handle this.

icon text-secondary-400 includedPlumbing Drawings (drawings showing the actual plumbing pipe sizes and locations) - your subcontractors handle this.

icon text-secondary-400 includedEnergy calculations - handled locally when required.

Related House Plans

Plan Collection
Plan Collection
Plan Collection
Plan#142-1168
Starting at$1395
2597
Sq Ft
1
Story
3
Bed
2.5
Bath
2
Car
Plan Collection
Plan Collection
Plan Collection
Plan#117-1092
Starting at$1095
2091
Sq Ft
1
Story
3
Bed
2.5
Bath
2
Car
Plan Collection
Plan Collection
Plan Collection
Plan#106-1276
Starting at$1295
2344
Sq Ft
1
Story
3
Bed
2.5
Bath
2
Car
View All

Other Plans By This Designer

Plan Collection
Plan Collection
Plan Collection
Plan#174-1043
Starting at$610
1277
Sq Ft
1
Story
3
Bed
2
Bath
0
Car
Plan Collection
Plan Collection
Plan Collection
Plan#174-1033
Starting at$660
1620
Sq Ft
1
Story
4
Bed
2
Bath
2
Car
Plan Collection
Plan Collection
Plan Collection
Plan#174-1039
Starting at$660
1476
Sq Ft
1
Story
1
Bed
2.5
Bath
2
Car